Brucato House

Highland Park-Garvanza, Los Angeles, USA
Photo © John Linden

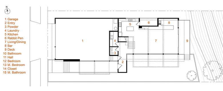
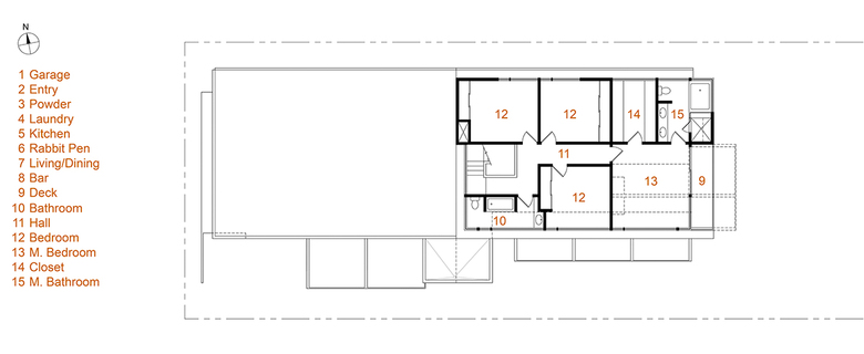
The Brucato house is a rare example of new construction within a Historic Preservation Zone (HPOZ) in the city of Los Angeles. Located in the Highland Park-Garvanza district, which is the largest HPOZ in Los Angeles, the project consists of a new house that replaced the client’s small, aging bungalow. Since the original house was determined to be historically insignificant, its replacement would have to be compatible with the historic context and subject to the HPOZ board’s approval. And with a limited budget, it was critical to reuse certain elements of the structure, such as the existing foundation and parts of the existing framing.

The design takes cues from the neighboring historic architecture, comprised of a row of historic Airplane Bungalows. From the street, the massing and materiality of the new house appears similar to these neighboring structures. The second story of the house is stepped-back, and the new shiplap siding is painted in a similar brown color. References to mid-century modern architecture become apparent, specifically of the nearby work of Buff & Hensman (best known for their Case Study Houses).

A post & beam system organizes the primary spaces. Its light tan color differentiates it from the colors of the exterior cladding and interior spaces. In its original context, post & beam architecture implied a continuity of space; beams seamlessly passed from interior to exterior in one homogeneous, continuous flow. Here, the beams transition two very different spaces. Emerging from the depths of a private domesticity, they reach out past the building envelope, framing spaces of light, air, and sky.

Photo © John Linden
Photo © John Linden
Photo © John Linden
Photo © John Linden
Photo © John Linden
Photo © John Linden
Photo © John Linden
Photo © John Linden
Photo © John Linden
Model
Photo © Martin Fenlon Architecture
Drawing © Martin Fenlon Architecture
Drawing © Martin Fenlon Architecture
Drawing © Martin Fenlon Architecture
Drawing © Martin Fenlon Architecture
Architects
Martin Fenlon Architecture
Year
2016
Project Status
Built

Related Projects 

  • Moos
    playze
  • Reiters Reserve Premium Suites
    BEHF Architects
  • Erweiterung und Instandsetzung Hallenbad Altstetten
    MIYO Visualisierung
  • Neubau von fünf Einfamilienhäusern
    Bäumlin + John Architekten ETH/SIA
  • The Forge at 105 Sumner Street in London
    Kiefer Klimatechnik GmbH

Magazine 

Other Projects by Martin Fenlon Architecture 

Fenlon House
Hermon, Los Angeles, USA
Bojanic House
Sherman Oaks, USA
Linda Rosa Duplex
Eagle Rock
Pacific Coast Highway Condos (In Development)
Malibu
6725-6739 San Fernando Rd
Glendale