Bus Depot in "El Triangle Ferroviari"

Passeig de la Verneda, Barcelona, Spain

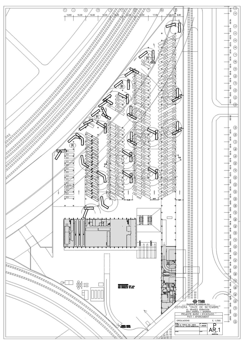
The project for the new depot was highly complex, since it is located on top of an existing underground railway depot. The structural solutions allowed, not only the construction of the underground bus depot, but also the buildings above. The building accommodates a fleet of 260 urban buses, including its maintaining, cleaning, fuel refilling, and the management of the service. It involved constructing a garage, a large underground parking area and a corporate building for the management of the TMB bus depot.

Architects
DFT arquitectes
Year
2002
Project Status
Built

Related Projects 

  • Centro Studi Canavée
    Soliman Zurkirchen Architekten
  • Moos
    playze
  • Reiters Reserve Premium Suites
    BEHF Architects
  • Erweiterung und Instandsetzung Hallenbad Altstetten
    MIYO Visualisierung
  • Neubau von fünf Einfamilienhäusern
    Bäumlin + John Architekten ETH/SIA

Magazine 

Other Projects by DFT arquitectes 

Horta Bus Depot
Barcelona, Spain
"La Cooperativa" Theater
Barberà del Vallès, Spain
Faculty of Educational Sciences
Cerdanyola del Vallès, Spain
Pentitentiary "Puig de les Basses"
Figueres, Spain
"La Massa" Theater
Vilassar de Dalt, Spain