Disseny Hub Barcelona

Plaça de les Glòries Catalanes 37-38, Barcelona, Spain

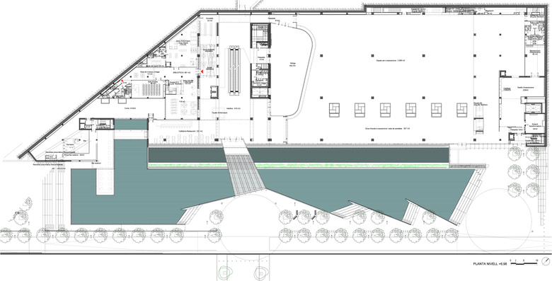
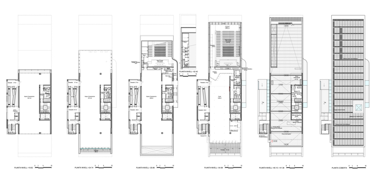
The Disseny Hub Barcelona building contains the Design Museum of Barcelona with the collections of the Museum of Decorative Arts, the Museum of Ceramics, the Museum of Textiles and Clothing and the department of Graphic Arts. Apart from these house the Municipal public library “El Clot-Josep Benet”, the offices of FAD (Foment de les Arts i del Disseny) and the BCD (Barcelona Centre del Disseny). The building is composed of two parts: basement floors (using the topographic difference in levels of approx. 8.00m) and the five floor anvil shaped building that uses the 33m cantilever to reduce its footprint to occupy the minimum public space of the future park. A sunken canal allows the southern light to enter the basement floors. A public pedestrian street runs through the lower floors of the “anvil” linking the lower district with the metro-station and with escalators up to the park and tramway. The upper floors contain permanent exhibition halls and a 200 seat auditory. The East basement contains the main 8m high exhibition hall and below it the reserve collections, workshops, research laboratories and offices. The building is set within a new public space forming part of the future Plaça de les Glòries.

Photo © Iñigo Bujedo
Photo © Martí Llorens
Photo © Marti Llorens
Photo © Iñigo Bujedo
Photo © Lourdes Jansana
Architects
MBM Arquitectes
Year
2013
Project Status
Built

Related Projects 

  • Moos
    playze
  • Reiters Reserve Premium Suites
    BEHF Architects
  • Erweiterung und Instandsetzung Hallenbad Altstetten
    MIYO Visualisierung
  • Neubau von fünf Einfamilienhäusern
    Bäumlin + John Architekten ETH/SIA
  • The Forge at 105 Sumner Street in London
    Kiefer Klimatechnik GmbH

Magazine 

Other Projects by MBM Arquitectes 

University Technocampus
Mataró (Barcelona), Spain
Appartment building "The white Tower"
L'Hospitalet de Llobregat. (Barcelona), Spain
Neápolis building. Space for the technology and ideas
Vilanova i la Geltrú, Spain
New office building for RBA editors
Barcelona, Spain
La Casa del Xuklis
Barcelona, Spain