Eckhaus Mainzerhofplatz
Mainzerhofplatz 4-5, Erfurt, Germany
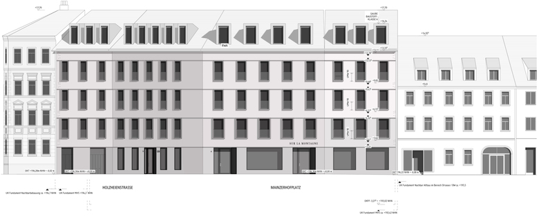
Der Entwurf des Eckhauses am historischen Mainzerhofplatz ist Teil der heterogenen umgebenden Bebauung, die auf mittelalterlichem Stadtgrundriss entstanden ist. Dem ungeordneten Durcheinander“ von Stilen und verwendeten Materialien setzt der Entwurf auf eigenständige Weise eine ruhig proportionierte und regelmäßig aufgeteilte Fassade mit gleichen Fensterformaten entgegen. Die 13 Wohn- und Gewerbeeinheiten werden über ein in der Ecke liegendes kreisrundes Treppenhaus mit Aufzugsanlage erschlossen. Die durch leichte Abwinklungen in der Gebäudeflucht entstehenden Lichtbrechungen und Schattenwirkungen dienen der Einfügung in den Kontext. Zusätzlich sind die Geschosse nach außen versetzt, und erhalten die für Erfurt typische außen flächenbündige Fensterkonstruktion mit kräftiger Rahmung.
- Architects
- Klaus Schlosser Architekten
- Year
- 2017
- Project Status
- Built
- Client
- GSW Gemeinnütziges Siedlungswerk GmbH Frankfurt/Main
- Aufgabe
- Neubau eines Wohn- u. Geschäftshauses mit Tiefgarage
- Fläche
- BGF 2950 qm inkl. Tiefgarage, WF 1650









