Erweiterung Schulanlage Zelgli

Kirchstrasse 5, Killwangen, Switzerland
Photo © Radek Brunecky

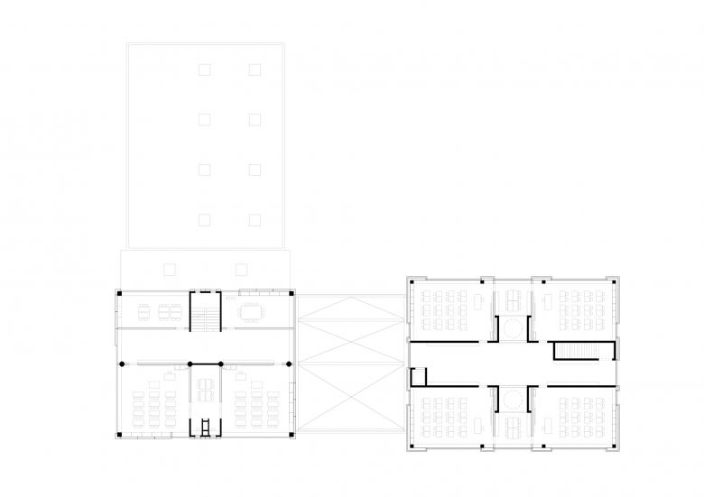
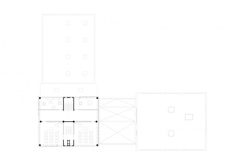
Die Schulanlage Zelgli befindet sich an zentraler Lage in Killwangen. In den 70er Jahren wurde die Schulanlage erstellt. Die Gebäudekörper fügen sich als abgetreppte Volumen gut in den Hang ein. Die beiden Trakte werden über eine mittige Erschliessungszone erreicht. Diese 1-geschossige Erschliessungszone fungiert als «Gelenk» der Anlage und tritt als beidseitig vollflächig verglaster Durchschussraum in Erscheinung. Die nun geforderte Erweiterung nimmt die Qualitäten und Charakteristiken der bestehenden Anlage auf und denkt sie weiter: Das neue Volumen wird östlich an den bestehenden Schulhaustrakt angebaut. Analog zur bestehenden Erschliessungszone wird auch hier mit einem eingeschossigen «Gelenk» an die Anlage angebaut. Hier werden die Aula und der gedeckte Pausenbereich untergebracht und können sowohl von den bestehenden Unterrichtsbereichen, wie auch vom projektierten Anbau direkt erreicht werden. Der neue Schultrakt tritt als zweigeschossiger Gebäudekörper in Erscheinung. Die neuen Unterrichtsräume im 1.Obergeschoss gliedern sich um eine innere Halle, die über 2 Lichthöfe gut belichtet wird. Im Erdgeschoss befinden sich die Räume für die Lehrerschaft. Über die Lichthöfe werden die beiden Ebenen visuell miteinander verbunden.

Photo © Radek Brunecky
Photo © Radek Brunecky
Photo © Radek Brunecky
Photo © Radek Brunecky
Photo © Radek Brunecky
Photo © Radek Brunecky
Photo © Radek Brunecky
Photo © Radek Brunecky
Photo © Radek Brunecky
Grundriss Erdgeschoss
Drawing © Soppelsa Architekten GmbH
Grundriss 1. Obergeschoss
Drawing © Soppelsa Architekten GmbH
Grundriss 2. Obergeschoss
Drawing © Soppelsa Architekten GmbH
Schnitt
Drawing © Soppelsa Architekten GmbH
Schnitt
Drawing © Soppelsa Architekten GmbH
Architects
SOPPELSA ARCHITEKTEN
Year
2016
Project Status
Built
Client
Gemeinde Killwangen

Related Projects 

  • Moos
    playze
  • Reiters Reserve Premium Suites
    BEHF Architects
  • Erweiterung und Instandsetzung Hallenbad Altstetten
    MIYO Visualisierung
  • Neubau von fünf Einfamilienhäusern
    Bäumlin + John Architekten ETH/SIA
  • The Forge at 105 Sumner Street in London
    Kiefer Klimatechnik GmbH

Magazine 

Other Projects by SOPPELSA ARCHITEKTEN 

Wohn- und Geschäftshaus Sue&Til
Winterthur, Switzerland
Konferenzgebäude
Posieux, Switzerland
Erweiterung Schulanlage Steig
Schaffhausen, Switzerland
Neubau Oberstufenzentrum Rötschmatte
Ins, Switzerland
Neubau Wohnhaus Baufeld E Oberstadt
Aarburg, Switzerland