Farmhouse "Toni zu Moos"
Natternbach, Austria
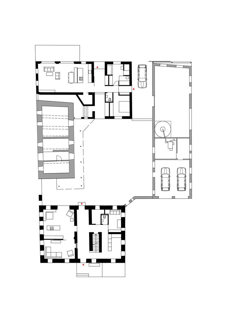
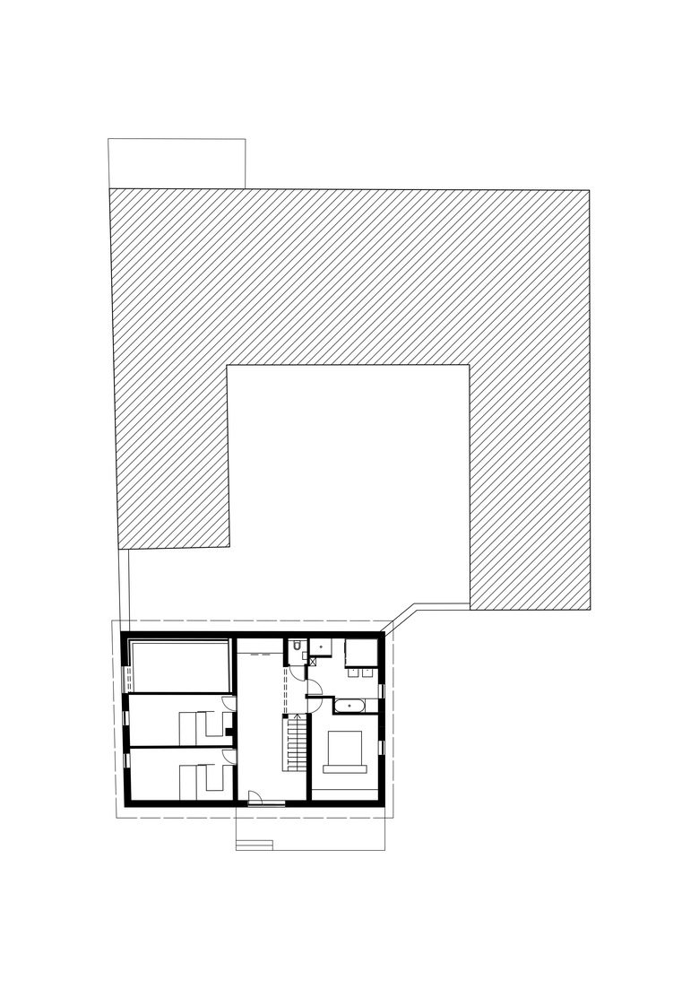
Here in Natternbach, a conscious path was embarked upon. The existing “Hausruckhof“ (a traditional Upper-Austrian farmhouse built in square shape around an enclosed courtyard) was meticulously analysed in intense cooperation of architects and builder-owners. Strengths and weaknesses having been weighed, the potential quickly became clear. Co-habitation of the generations would be spatially feasible without further ado. A great deal of tinkering started. It was cut in where necessary, re-organised and adapted. At present, 5 people of 3 generations live here under one roof.
The result is exemplary. Instead of letting the old building fabric lie waste and sealing precious, irretrievable agricultural land, the existing space has been freshly thought.
The young ones now live in the renovated so-called Hausstock, the original living quarters of the farm. The elder ones reside in the former barn and garage. The stable becomes the new garage with workshop and wood chip heating system. A fitness-sauna is installed in the former boiler room. Nice little side note: The building site was hardly perceivable from outside. Thus for the neighbours, all of a sudden a living room appaered in the garage.














