Fire Station Sittard

Swenitboldstraat, Sittard, Netherlands
Front faccade
Visualization © Coenen Sättele Architecten

Fire Station Sittard

The design of the new fire station is based on the highly functional space program and the urban planning conditions of the residential area.
The differently high building parts are connected by a folded roof, which also accentuates the transparent corner of the building, where an old handcart of the fire brigade is exhibited
The wooden façade cladding and the main wooden structure mirror the high sustainable ambitions of the project and anchor the building in a natural way through color and material in the context, which is characterized by beautiful old trees

Front facade
Visualization © Coenen Sättele Architecten
Front facade
Visualization © Coenen Sättele Architecten
South facade
Visualization © Coenen Sättele Architecten
Birds eye view
© Coenen Sättele Architecten
Roof plan
Drawing © Coenen Sättele Architecten
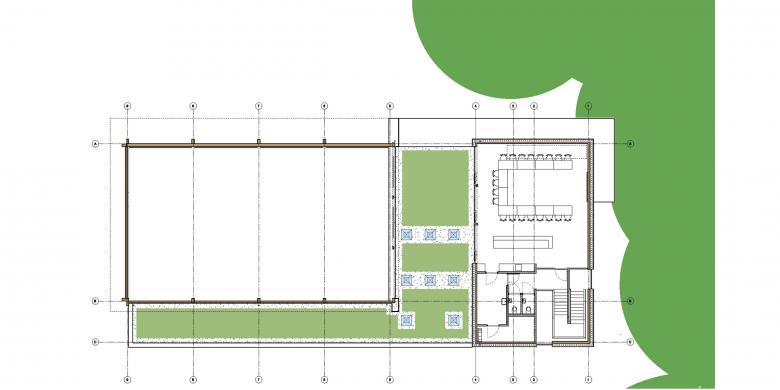
Ground floor
Drawing © Coenen Sättele Architecten
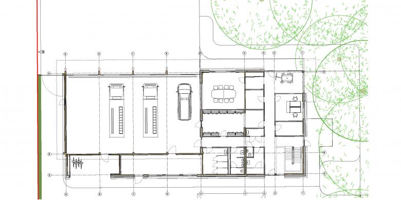
First Floor
Drawing © Coenen Sättele Architecten
Architects
Coenen Sättele Architecten
Year
2022
Project Status
Under Construction

Related Projects 

  • Moos
    playze
  • Reiters Reserve Premium Suites
    BEHF Architects
  • Erweiterung und Instandsetzung Hallenbad Altstetten
    MIYO Visualisierung
  • Neubau von fünf Einfamilienhäusern
    Bäumlin + John Architekten ETH/SIA
  • The Forge at 105 Sumner Street in London
    Kiefer Klimatechnik GmbH

Magazine 

Other Projects by Coenen Sättele Architecten 

Düsseldorf Medienhafen
Hotel Heppie Veluwe
Vierhouten, Netherlands
Masterplan Vaals
Vaals, Netherlands
Building Gerard Strijp S Transformation of a former industrial building
Eindhoven, Netherlands
Villa E
North Germany, Germany