Gladstone Gallery 21st Street

New York, NY, USA
Photo © Nikolas Koenig

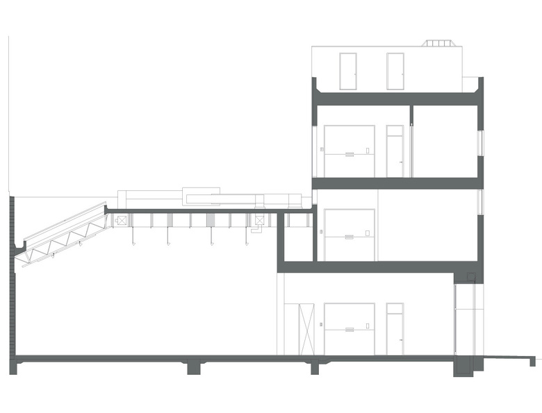
Located in Chelsea between 10th and 11th Avenues and situated between two other galleries, Selldorf Architects was tasked with creating a building suited to the display of large sculpture and installation art. Large roof trusses are the only remnants of the sound studio formerly on the site. The main exhibition area is a dramatic, column-free space that measures 50' x 50' with 22' ceilings. The ceiling, with exposed trusses measuring 3' deep, is reminiscent of 20th-century industrial space. A single large sloped skylight—glazed with sandblasted wire glass—admits an abundance of daylight. Acknowledging the industrial warehouse character of the neighborhood, the façade is made of brick—a black, hand-cut shaped brick of unusual proportions, laid with a filled joint to underscore the monumental appearance of the building. The façade, with its large opening on the ground floor and ribbon windows on the upper levels, reflects the functions within.

Photo © Nikolas Koenig
Photo © Nikolas Koenig
Photo © Nikolas Koenig
Photo © Nikolas Koenig
Drawing © Courtesy of Selldorf Architects
Drawing © Courtesy of Selldorf Architects
Architects
Selldorf Architects
Year
2008
Project Status
Built

Related Projects 

  • Moos
    playze
  • Reiters Reserve Premium Suites
    BEHF Architects
  • Erweiterung und Instandsetzung Hallenbad Altstetten
    MIYO Visualisierung
  • Neubau von fünf Einfamilienhäusern
    Bäumlin + John Architekten ETH/SIA
  • The Forge at 105 Sumner Street in London
    Kiefer Klimatechnik GmbH

Magazine 

Other Projects by Selldorf Architects 

Brown University John Hay Library
Providence, RI, USA
Walden House
Edwards, CO, USA
Hauser & Wirth 18th Street
New York, NY, USA
The Clark: Museum Building
Williamstown, MA, USA
Neue Galerie New York: Museum for German and Austrian Art
New York, NY, USA