In the Stream of Thresholds - Residential House
Switzerland
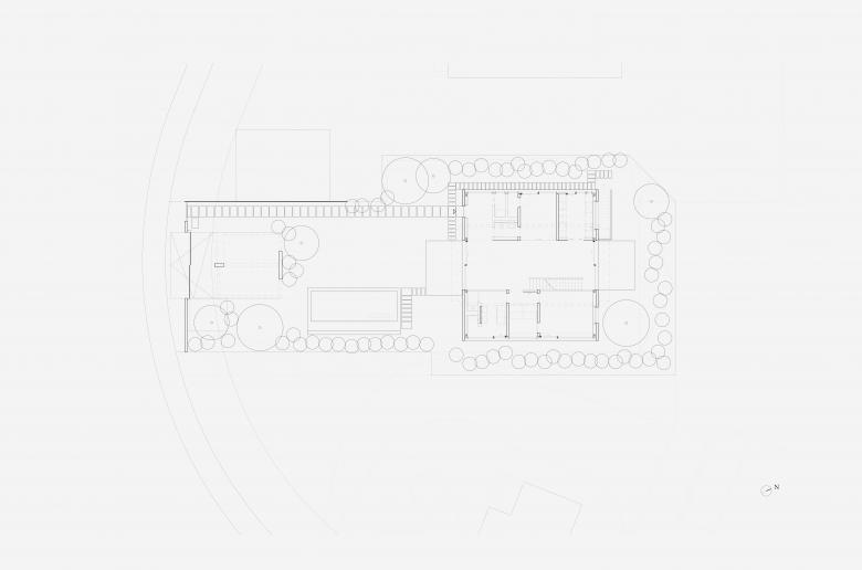
The new single-family house is situated at the rear of a private plot on a gently sloping site, carefully embedded into the challenging terrain. Built upon a dried-up riverbed, the site features a multi-layered subsoil composed of clay, loess, rock and Rhine gravel. In the underground, a retaining wall running along the entire length of the house holds the loose gravel and ballast.
At the heart of the house is a continuous, ground-level living space, glazed at both the front and rear to open onto the garden and framed by living areas on the sides. This spatial continuum seamlessly connects the interior and exterior spaces, facilitating a fluid interaction between the two. Sliding and folding doors along the sides allow the living area to be connected or separated from the adjacent rooms as needed. Cross-references between spaces are deliberately encouraged, while rigid boundaries are largely avoided, allowing the living space to remain adaptable and expandable.
The central space results from a process of spatial disentanglement, achieved by separating the main load-bearing walls, within which the enclosed rooms are formed. The main living space, the most conceptually rich area, is structurally conceived as an “empty” room, creating an atmosphere of simultaneous tension and calm. An open staircase connects the central space to the upper floor, which rests on four inner corner points of the external walls below. Interestingly, this layout places a significant load and accentuates the defining moments of the “empty space”.
The exposed concrete load-bearing walls are positioned at right angles on both floors reflecting the deliberate alignment of the rooms and the careful balance between sensitivity and robustness in the structural design. These design elements are inspired by the multi-dimensional geological features of the site and the structural density of the environment. The architecture seeks to harmonize natural integration with the constraints of its complex surroundings.
Here, calm meets unrest. Thresholds define transitions, while flowing spaces dissolve boundaries. Together, they form a unified and enclosed space. A place, a house.
- Architects
- Patrick Reuter Architecture
- Year
- 2024
- Project Status
- Built



















