Japanese Onsenbath
Radolfzell, Germany
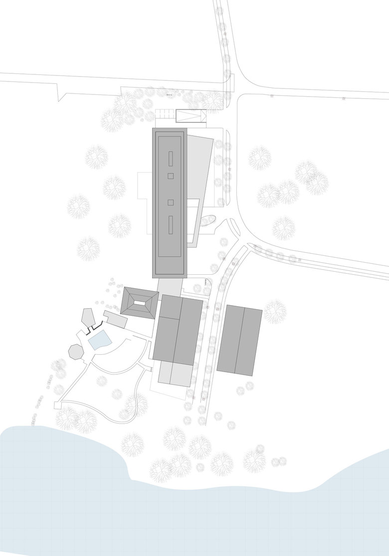
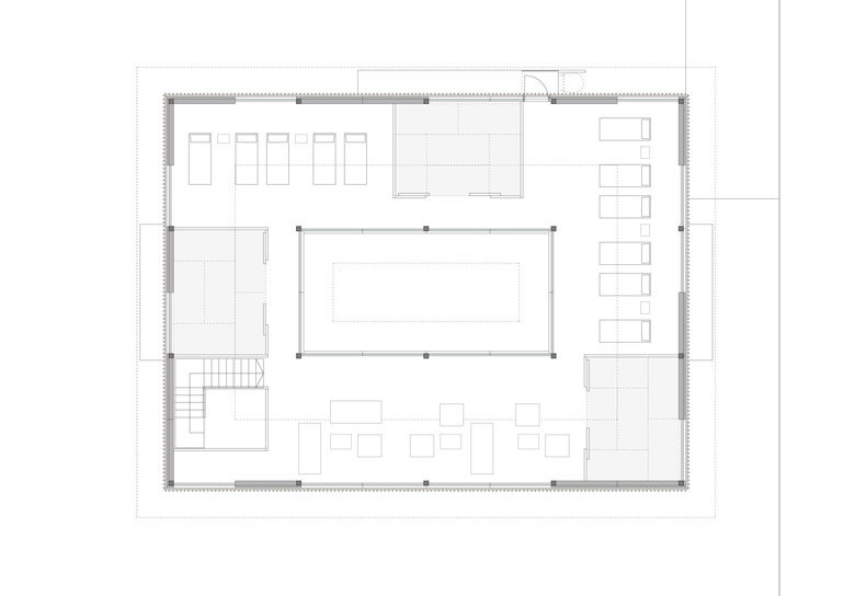
Japanese onsen building as an extension of the existing Bora Sauna Area an as a Spa-Wellness Area for the new built 4 star superior Bora Hot Spa Resort Hotel close-by. Scale: Hot onsen bath in an inner courtyard, surrounded by a a Bamboo- an a Steamsauna, changingrooms, japanese shower an washing room in the ground floor. First floor conventional rest areas alternating with more intimate japanese tatami rooms. 430 sqm gross area, 2.500 cbm gross volume.
Client
Hotel Bora GmbH & CoKG
Work
Landscape-, architecture- and interiorplanning
Period
2011-2016
Project Team
Bruno Franchi
Mitarbeiter: Lucia Gratz, Uta Bahn, Stefan Horn
Cooperation Interior Design: Biquadra, Meran
Photos
Kuhnle+Knödler, Radolfzell
Bruno Franchi, München















