"La Nau" Industrial Building Renovation for Cultural Equipment
Carrer Arquímedes 8, Barberà del Vallès, Spain
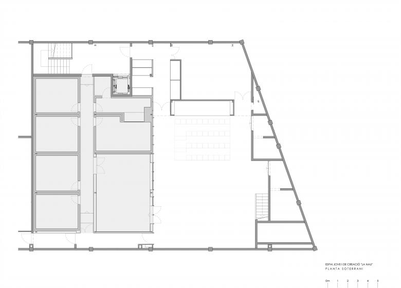
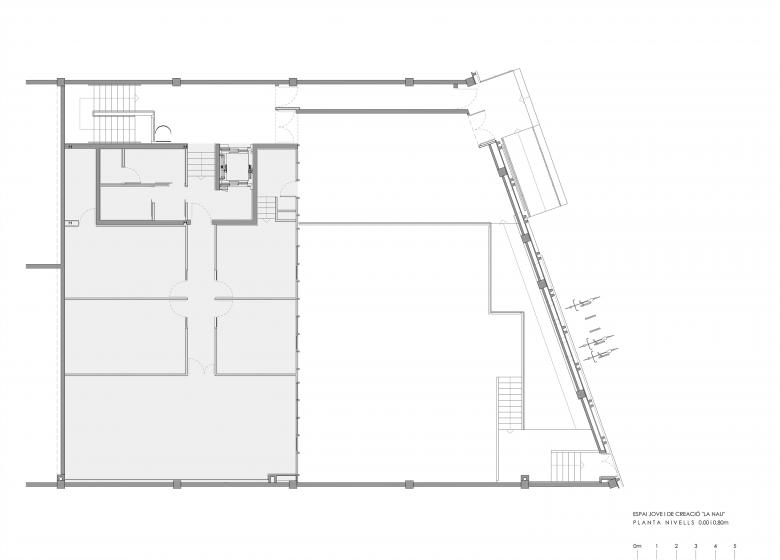
The "Nau", a young and creative space in Barberà del Vallès, is the result of the internal reform of an industrial warehouse, which has been transformed into a cultural centre. The space promotes artistic creation and diffusion activities, concerts, and recreational and training activities for young people.
The proposal uses the elements of the original warehouse as an indoor space, well-lit, multipur-pose and the first protective skin of large dimensions, ideal for hosting multiple activities, and cre-ates a second and smaller box that hosts those specific activities that need thermal and acoustic insulation such as workshops and training sessions.
The warehouse structure keeps its initial condition, with the trace of paintings and finishes of pre-vious reforms. The gap between the entrance and the ground floor of the building allows for the creation of a large hall as a balcony over the rest of the space, which can be used for different purposes and activities.
The new box built inside from a metal structure and whip tank walls is shown with a new facade on this great interior bouyard.
- Architects
- Meritxell Inaraja i Genís
- Year
- 2020
- Project Status
- Built
- Client
- AMB - ÀREA METROPOLITANA DE BARCELONA, AJUNTAMENT DE BARBERÀ DEL VALLÈS
- Team
- Col.laboradors Arquitectura: Laura Bigas - Amàlia Casals - Josep. M Cubí - Ester Serradell (arquitectes), Col.laboradors Estructura: DSM Arquitectes - Samuel Molist (arquitecte), Col.laboradors Instal.lacions: Teyle - Técnica y Legalización SLP, Arquitectura Tècnica: Bernat Ros (arquitecte tècnic), Col.laboradors Amidaments i Pressupost: Control y Gestión de Obras y Proyectos SLP - Àngel Gil - Joan Just Caro (arquitectes tècnics), Constructor: UTE Connecta Barberà (Voltes Connecta SLU-Voltes SLU)






























