Mymory Boutique Hotel
Hangzhou, China
MYMORY boutique hotel in a rural old house is located in the foothill of Tianmu mountain scenic spot in Taihuyuan, Lin’an, Hangzhou. Surrounded by picturesque natural landscape, overlooking the distant village and outlining a beautiful Chinese ink painting. An old house built in 1970s is beautifully preserved, with the main rammed earth walls and the wooden frames. We envision the old residence as the representation of spirit of older generation. This became the premise of the project overall planning.
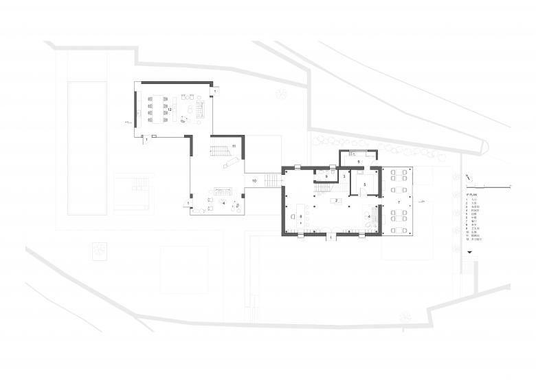
Atelier Right Hub has an overall planning for this project, an old house to be preserved, a brand-new building to be built on the original site, the whole site is composed of four courtyards in the east, the west, the south and the north. The existing walls and wooden structures are repaired and reinforced, the floor is composed of steel structure and concrete. The concept of renovation for the old house, a "Coat" is worn for the original rammed earth walls with the recycled old bricks, and the wooden structures are reasonably exposed in the interior space, and the history traces of the old house and the beauty of the structures are presented completely to guests. We replace the original single residential function of the old house with the multi-function of the hotel, including the lobby, reception, lounge, tea room, dry kitchen, wet kitchen, dining room and two suites on the second floor. In terms of daylighting, the large skylight is installed on the roof of living room, bedroom and bathroom to introduce natural light into the interior space, which drastically improves the quality of indoor lighting during the daytime. On the east side of the old house, a new restaurant on the water “YING Dining Room” has been built with steel structures and glass curtain walls. Japanese cherry trees are planted in the east courtyard, and guests can enjoy a unique dining experience when cherry blooms in spring.
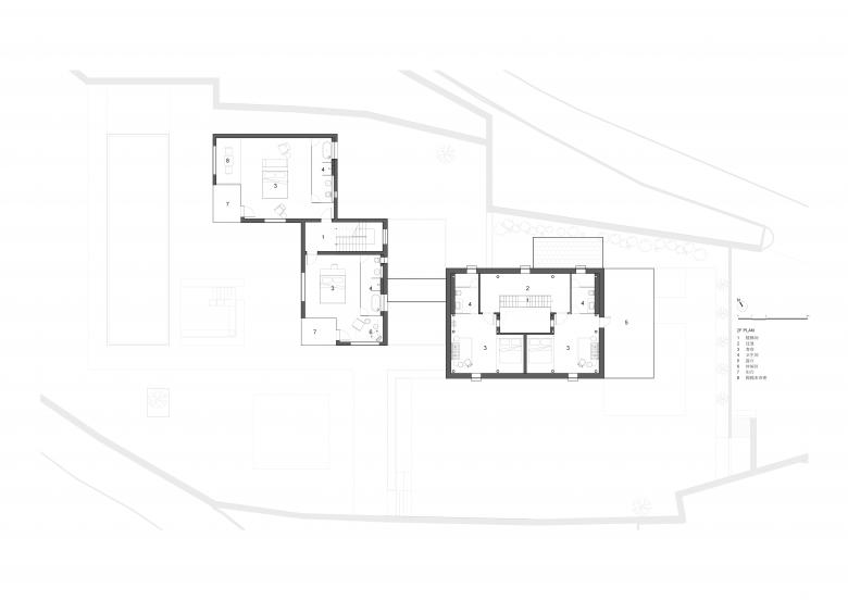
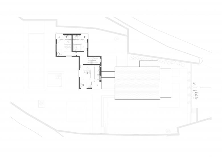
From the old house to the new building through the glass corridor, there is the 1.5 meters height difference between them. The view from reflecting pond on both sides of the corridor, it seems as if the guests walk out from the water. There are two lounges in the new building, the guests have a panoramic view of the outdoor scenery through the glass curtain walls in the lounge facing south. There is a fireplace in the lounge facing northwest, it is comfortable for guests to sit by the fireplace and have a cup of coffee in winter. We plan 5 suites with the private viewing balcony, located on 2nd and 3rd floors. The large windows in each suite meet the natural lighting during the daytime, meanwhile, the outdoor beautiful scenery is also introduced into the room. The bathroom in suite has been designed as the “Glass Box”, the transparent and bright design meets the "Unusual" experience to guests, and we also set up the curtain with hidden track on the periphery of the “Glass Box” to ensure the privacy of the guests using the bathroom. The appearance of the new building is expressed by the block element with cement texture. The perforated wood screens as “Skin” will be installed completely in the future, the filtered light from the wood screens allows the interior space to render the flowing texture of the time.
There is a swimming pool designed in the west courtyard, a sunken plaza next to swimming pool that can accommodate 6 to 8 people at the same time. We design the section between swimming pool and sunken plaza as the “Bar”, the guests could also have a drink and chat with friends at the "Bar" while swimming. The east, south and west courtyards are enclosed with glass railing on the south side, the site boundary is visually blurred, guests in the courtyard look out over the distant village without hindrance.
- Single Houses
- Collective Housing + Multiple Houses
- Mixed Use
- Hotels + Hostels + Guest Houses
- Public + Private Gardens
- Furniture / Product
- Architects
- Atelier Right Hub
- Year
- 2019
- Project Status
- Built
- Client
- Private
- Team
- Gong Zhinan (Principal Architects), Liu Meng (Principal Architects), Zhang Jie (Architectural Designer), Ling Huihong (Interior Designer), Wu Kailun (Interior Designer), Song Yongjian (FF&E Designer), Xu Zhen (Graphic Designer)
- Structural Consultant
- Zhang Haihang / Zhejiang Guangsha Architectural Design&Research., Ltd.
- Lighting Consultant
- JIZHI Lighting


















































