Neubau Fröbelschule
Offenbach, Germany
“Eine Stadt wie ein Haus, ein Haus wie eine Stadt“
Aldo van Eyck, 1960
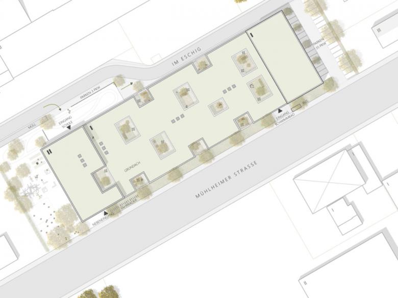
Der Neubau der Fröbelschule liegt als Solitär im heterogenen Umfeld an der Mühlheimer Straße. die Raumkante an der Mühlheimer Straße wird deutlich formuliert und verankert das Gebäude im Stadtraum. die geschlossene Form lässt Gebäude als eigenständigen Baustein im Stadtgefüge erscheinen.
Alle Räume, die mit mehreren Schülerinnen und Schülern genutzt werden, liegen ebenerdig und sind mit dem Rollstuhl ohne Rampen oder Aufzug erreichbar. Im Obergeschoss sind die Räume der Lehrerinnen und Lehrer vorgesehen, sowie die Räume, die mit einzelnen Schülerinnen und Sschülern genutzt werden. Außerdem ist der edv – Raum im Obergeschoss untergebracht. Durch diese Anordnung kann auf eine raumgreifende Rampenanlage verzichtet werden, Die Erschließung des Obergeschosses erfolgt über Treppen und Aufzug.
Es entsteht ein großflächiges Erdgeschoss, in dem Innen- und Außenräume pixelartig angeordnet sind. Alle wesentlichen Unterrichtsräume haben einen direkten Bezug zu einem ruhigen Innenhof. der Straßenlärm wird ausgeblendet, Einblicke und Störungen von außen werden minimiert.
Man betritt das Gebäude über den eingefriedeten Vorbereich und erreicht die großzügige, zweigeschossige Aula mit den angelagerten Gemeinschaftsräumen. Hier befinden sich Cafeteria, Freizeitraum, Musikraum und Lehrküche mit räumlichen Bezügen untereinander und Verbindung zum Außenraum. Im Kopf des Gebäudes sind auch Bibliothek, Werkräume und die Hausaufgabenbetreuung untergebracht. die Bbetreuung liegt mit direktem Zugang zum Aaußenbereich nah an Eingang und Cafeteria. von hier führt eine lineare Erschließungsachse mittig durch das Gebäude bis zum Schwimmbecken und zur Bewegungshalle. seitlich angelagert sind die in Clustern gruppierten Unterrichtsräume.
Jede Stufe hat eine eigene Adresse, mit einer Mmitte und mit direkt zugeordneten Nebenräumen und WCs. Es werden vielfältig nutzbare Flächen mit Durchblicken und Ausblicken zu den begrünten Innenhöfen angeboten. Es entsteht eine Abstufung in der Privatheit von den Gemeinschaftsbereichen über die interne „Straße“ zu den Clustern und zu den einzelnen Kklassen. Der Wechsel von Innen- und Außenräumen erleichtert die Orientierung und versorgt alle Bbereiche mit Tageslicht.
Im Sommer sind die Innenhöfe als Unterrichts- und Aufenthaltsräume nutzbar, Teilbereiche der Höfe sind überdacht und auch bei Regenwetter nutzbar. Die Innenbereiche der Cluster verfügen jeweils über öffenbare Fassadenflächen in verschiedene Richtungen, die eine wirksame Querlüftung ermöglichen. die Klassenräume haben ebenfalls großflächige Lüftungsmöglichkeiten, so dass auf eine mechanische Lüftung verzichtet werden könnte.
Die Beheizung des Gebäudes könnte über eine Pellets-Heizung erfolgen, die im Untergeschoss angeordnet ist. Die Wärmeverteilung ist über eine Fußbodenheizung sinnvoll.
Das Gebäude ist als konventionelle Massivkonstruktion gedacht, Tragende Wände, Stützen, Decken und Dächer in Stahlbeton, die Teilunterkellerungen in WU-Beton. die Außenwände im Erdgeschoss erhalten eine hinterlüftete Lklinkerfassade. für die Dachränder des Erdgeschosses und die Fassaden im Obergeschoss ist eine hinterlüftete Fassade aus Keramik-Elementen vorgesehen, die eine farbliche Differenzierung ermöglicht: die Mischung der Farbtöne erhält in den unterschiedlichen Innenhöfen verschiedene Schwerpunkte. Die Innenhöfe und die farbigen Fassadenflächen sind durch die Oberlichter und Verglasungen im Gebäude deutlich wahrnehmbar und ermöglichen so eine zusätzliche Orientierung und Identifikation.
Die Materialität der Wand- und Fassadenflächen lässt zusammen mit Metallkonstruktionen im Bereich der Fenster und mit robusten Materialien im Innenausbau (Industrieparkett, Betonwerkstein,...) erwarten, dass das Gebäude auch nach Jahren der Benutzung noch gut aussieht.
Die farbigen Fassadenelemente setzen eine bunten und frischen Akzent im Straßenraum und lassen die Nutzung des Gebäudes erahnen.
Mit den Innenhöfen, den Pausenflächen im Südwesten und der als Bewegungsfläche nutzbaren Vorfahrt stehen insgesamt ca. 3000 m² nutzbare Außenflächen zur Verfügung. die Fläche der Vorfahrt an der Straße „Zum Eschig“ wird doppelt genutzt: die Schulhoffläche wird durch einen Zaun von der Vorfahrtsfläche abgetrennt, zur Bring- und Abholzeit sind die kleinen Tore geschlossen. Beim Aussteigen kann die Fläche von der Straße abgetrennt werden. Nach Ausfahrt der Fahrzeuge werden die Tore zur Straße geschlossen und die Verbindungen zum Schulhof geöffnet, die Vorfahrt dient als Bewegungsfläche für Roller, Pedalos etc.
Stirnseitig vor dem Gebäude sind die weiteren Bewegungsangebote zu finden: an zentraler Stelle, optimal im Blick der Betreuer, der Kletter-Schaukel und Sandspielbereich für die Jüngsten. Flankierend dazu Ballspielplatz, Trampolin und Tischtennis für die Älteren. Der Kräutergarten ist in räumlicher Nähe zur Lehrküche angeordnet, Sitzmöbel und Tische werden von der Cafeteria aus genutzt. die Außenanlagen sind durch geschlossene Einfriedigungen vom Straßenraum abgeschirmt, die Aufdoppelung der Mauer bietet Raum für Mülltonnen, Fahrräder und Gartengeräte.
Die Zufahrt zur Schule erfolgt über die Straße „Im Eschig“ aus Richtung Südwesten. Die busse fahren nach dem Absetzen der Schülerinnen und Schüler weiter Richtung Nordosten und queren das Grundstück im Bereich der Stellplätze für die Lehrerinnen und Lehrer. Hier erfolgt die Einfahrt auf die Mühlheimer Straße. Eeinige Parkplätze stehen als Längsparker direkt vor dem Haupteingang zum Bringen und Abholen oder als Besucher-Parkplätze zur Verfügung.
Der Schwimmbadbereich wird für die externe Nutzung direkt von der Mühlheimer Straße, auf der Höhe der Bushaltestelle über einen überdachten Vorbereich erschlossen. unerwünschte Einblicke oder Störungen des Schulbetriebens sind ausgeschlossen.
- Architects
- architektei mey
- Year
- 2017
- Project Status
- Under Construction
- Team
- Ole Brinckmann, Tim Alfers, Vikotr Gatys, Mona Richter, Mark da Silva, Lea-Sophi Wörner






