Neubau Wohn- und Gewerbehaus Birmensdorf
Der zweigeschossige Gewerbebau soll einem Ersatzneubau mit Gewrebe und Wohnen weichen. Die ländliche Atmosphäre an der Westseite des Uetlibergs im weiten Talkessel und die grün gesäumte Reppisch bestimmen die Qualitäten des Perimeters. Das Grundstück legt sich im Norden an die Gemeindestrasse und reicht nach Süden bis fast an das Bachbeet mit üppigem Baumbestand. Auf der anderen Seite der Reppisch verläuft der Reppischweg und der Grünraum zieht sich den unbebauten Hügel hoch.
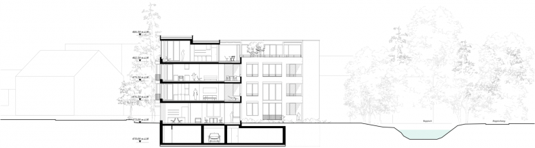
Es wird ein T-förmiger Baukörper mit Kopfbau entlang der Stallikonerstrasse vorgeschlagen, welcher die Länge des Bestandes beibehält. Mit der skulpturalen Figur kann die Parzelle optimal ausgenutzt und ein eigenständiges Gebäude geschaffen werden, welches sich in der weiteren Entwicklung von Birmensdorf behaupten kann. Das Gebäude erhält durch die partielle Staffelung der Abwicklung und das Zurücksetzen des Attikageschosses eine dem Umfeld angemessene Massstäblichkeit. Durch die Rückstaffelung im strassenabgewandten Gebäudeteil eröffnen sich für alle Wohnungen weitschweifende Ausblicke in den Grünraum.
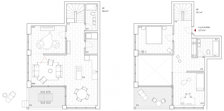
Insgesamt 11 Wohnungen sind in dem kompakten Volumen untergebracht. Die Wohnungen sind durch ihre übergeordnete Raumstruktur miteinander verwandt. In den doppelstöckigen Town Houses legt sich der Wohnraum mit offener Küche winkelförmig an den Aussenraum. In einem Teilbereich ist der Raum zweigeschossig und ergibt eine attraktive Wohnhalle. Der prächtige Baumbestand entlang der Reppisch bildet die Kulisse.
Die Regelwohnungen betritt man aus dem dunklen Bauch des Gebäudes, um dann die diagonalen Blickbezüge zum Aussenraum noch intensiver wahrzunehmen. Entlang des Fensterbandes entwickelt sich eine Abfolge von Küche, Wintergarten, Essraum und Erkerzimmer. Die gestaffelte Gebäudeabwicklung schafft innerhalb der Wohnungen vielseitigen Bezug zur Grünanlage und der Weitsicht zum Hang. Diese räumlichen Prinzipien sind auch auf die Kleinwohnungen angewendet.
Die Attikawohnungen legen sich mit einer grosszügigen Verglasung um den Terrassenbereich und öffnen den Blick in Richtung Naturraum und zur Reppisch. Die Wohnhalle, welche durch die Überhöhe im Westen ensteht, bietet mit einer lichten Raumhöhe von 3.20 m maximale Grosszügigkeit und gibt den Blick über die Dächer in die Weite frei.
- Architects
- Traxel Architekten
- Year
- 2025
- Project Status
- Under Construction
- Team
- Philippe Niffeler, Corinne Liebi, Gabriela Traxel
- Bauingenieur
- Schnetzer Puskas






















