PLOT 4328

Kferdebian, Lebanon

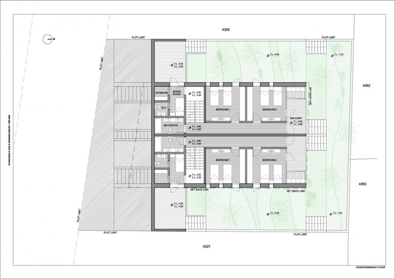
Plot # 4328 is located on a 535-square-meter parcel in Kferdebian, Mount Lebanon, on a steep topography with a 10-meter drop between its road frontage and the lowest point on the site. The south façade connecting the project to the access road is an inclined plateau that starts at ground level and slopes up seven meters in the northern direction. The inclined plateau acts as the roof as well as a street façade deployed on an oblique plane which steps up to an elevated pool at the northern tip of the slope. The sloping plane also leads the visitors up to the main entrances at mid-level located on the eastern and western edges of the roof.The north façade is glazed from floor to ceiling on all three levels, open to long and narrow balconies overlooking spectacular views of the valley. The eastern and western facades have limited openings which provide access to intermediate terraces that define the eastern and western edges of the property. The two proposed units are organized on three split levels with high-ceiling reception spaces located on the upper level. The northern terraces of the project located at the lowest edge of the site are also accessible from the reception area by making use of a mobile balcony that travels vertically on the façade.

Architects
Bernard Khoury / DW5
Year
2010
Project Status
Built

Related Projects 

  • Moos
    playze
  • Reiters Reserve Premium Suites
    BEHF Architects
  • Erweiterung und Instandsetzung Hallenbad Altstetten
    MIYO Visualisierung
  • Neubau von fünf Einfamilienhäusern
    Bäumlin + John Architekten ETH/SIA
  • The Forge at 105 Sumner Street in London
    Kiefer Klimatechnik GmbH

Magazine 

Other Projects by Bernard Khoury / DW5 

Babyn Yar Memorial
Kiev, Ukraine
Pristina X
Pristina, Kosovo
4146 Lankershim Boulevard
Los Angeles, USA
Tumo Center fo Creative Technologies (MASIS)
Masis, Armenia
PLOT 4371
Beirut, Lebanon