Reihenhäuser Undermülistrasse

Undermülistrasse 12, Fehraltdorf, Switzerland
Visualization © 3D Project GmbH

Nutzung: 6 Einheiten
Geschossfläche: 1300 m2
Kubatur: 4400 m3

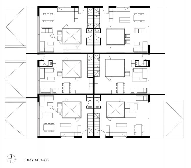
Eingebettet im Siedlungsgebiet von Fehraltorf, nur wenige Schritte vom Bahnhof entfernt, bietet das Reihenhaus-Projekt an der Undermülistrasse beides, einen nicht alltäglichen Grundriss und familienorientiertes Wohnen. Das Projekt umfasst sechs unterschiedliche Maisonettewohnungen. Es zeichnet sich durch ein innovatives architektonisches Konzept aus, bei dem jede Einheit von einem zentralen verglasten Lichthof geprägt ist, der sich über zwei Etagen erstreckt und viel Offenheit und Licht schafft.
Die Grundrisse sind je um diesen zentralen Aussenraum organisiert. Der grosszügige Wohn-Essbereich im Erdgeschoss wird in unterschiedlich bewohn- und möblierbare Zonen unterteilt. Die Schlafzimmer mit Fenster an der Aussenfassade und oder zum Lichthof sind je nach Einheit im Geschoss darunter oder darüber über eine innenliegende Treppe erreichbar.
Das Design basiert auf der Idee, eine harmonische Wohnumgebung zu schaffen, die sowohl Gemeinschaft als auch viel Privatsphäre bietet. Jede der 4.5-Zimmer Einheiten verfügt über einen ganz privaten Aussenraum im Herzen des Hauses, der den Bewohnern eine ruhige Zuflucht gibt. Wohnen und Schlafen, auf unterschiedlichen Stockwerken - werden zusammengebracht, das Haus wird durch die fließende visuelle Verbindung vom oberen zum unteren Stockwerk zusammengebracht und gleichzeitig erweitert.

Drawing © BGA Architekten AG
Visualization © 3D Project GmbH
Visualization © 3D Project GmbH
Photo © René Dürr
Photo © René Dürr
Architects
BGA Budelmanngernet Architekten AG
Year
2022
Project Status
Built
Team
Hannes Budelmann, Tina Gernet, Valeria Erasmo, Janka Dony, Maria Petruljevic, Rita D'Aguilar

Related Projects 

  • Secondary School Schulstraße
    Kronaus Mitterer Architekten
  • GROHE Water Experience Center
    D’art Design Gruppe GmbH
  • Limmatquai 4
    Kästli Storen
  • Primary School Erlaaer Schleife
    Kronaus Mitterer Architekten
  • Ortsdurchfahrt Domat/Ems
    Luminum GmbH

Magazine 

Other Projects by BGA Budelmanngernet Architekten AG 

Mehrfamilienhäuser Schürbungert, Kloten
Kloten, Switzerland
Mehrfamilienhäuser Schwarzackerstrasse, Wallisellen
Wallisellen, Switzerland
Pflegeheim mit Alterswohnungen Oase Lindenhof, Wetzikon
Wetzikon, Switzerland
Wohnsiedlung Pfannenstilstrasse
Meilen, Switzerland
Mehrfamilienhäuser Hübel
Othmarsingen AG, Switzerland