Sakuragi Kindergarten
Kanazawa-city, Ishikawa, Japan
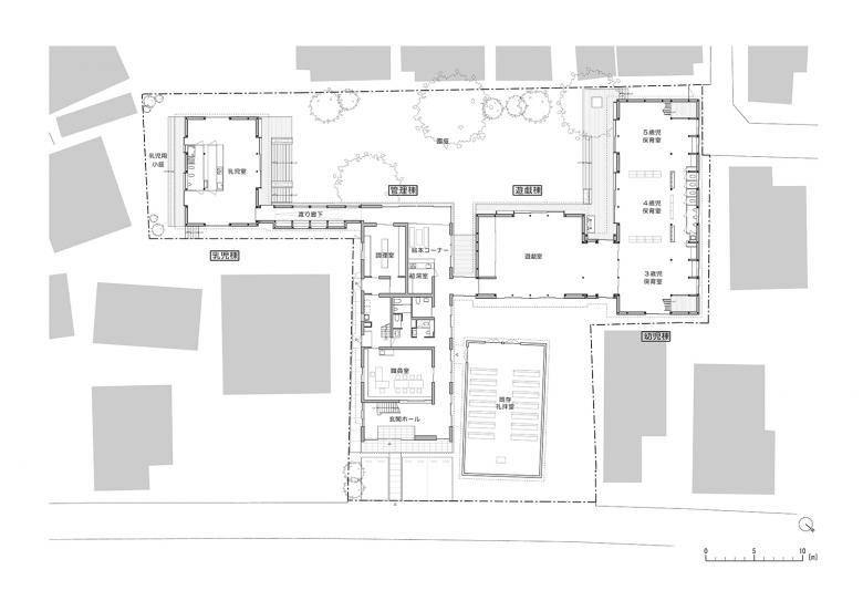
Rebuilding project of a church-affiliated kindergarten. The kindergarten has a history of over 100 years.
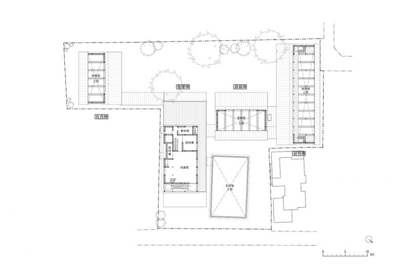
The buildings are connected by a corridor with playful spaces, to create a kindergarten filled with diverse learning experiences. Their simple form allows children to concentrate on teaching and playing.
By following the configuration of the former building, which had a high window to take in the cherry blossom scenery, and by reusing the staircase of the former parsonage designed by W.M. Vories, we hope to carry on the history of the kindergarten, including its attachment to the past.
Design: Akihiko Inari Architects and Associates + Studio Tawaraya
Structural design: Miyasaka Engineer Office Cooperation
Facilities design: Yamazaki M&E Design
Construction: Token cooperation






















