Seniorenwohnhaus St. Josef
Kniebisstraße, Frankfurt, Germany
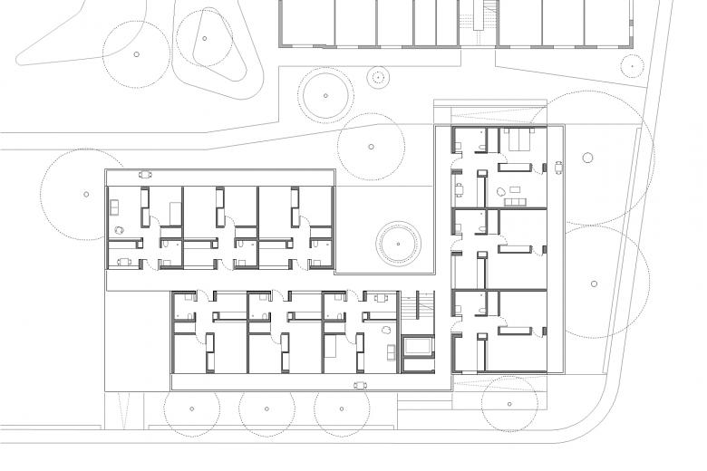
In Würde altern – eine klare aber zurückhaltende Architektur soll die persönliche Entfaltung im Seniorenwohnhaus St. Josef des Caritasverbands Frankfurt ermöglichen. Die Idee des betreuten, aber selbständigen Wohnens in der Gemeinschaft wird durch die Anordnung von insgesamt 35 Wohnungen nach Süd, West und Ost um einen gemeinschaftlichen Innenhof gestärkt. Dieser ist Identifikations- und Kommunikationsraum für die Bewohner der 24 barrierefreien und 10 rollstuhlgerechten Wohnungen sowie der Wohngemeinschaft des dreigeschossigen, U-förmigen Neubaus. Die fertiggestellten Wohnungen konnten zum 01.12.2015 bezogen werden.
- Architects
- Waechter + Waechter Architekten BDA
- Year
- 2015
- Project Status
- Built
- Client
- Caritasverband Frankfurt
- Mehrfachbeauftragung
- 2012 - 1. Platz
- Winner Architecture Domestic
- 2016 - ICONIC AWARDS
- Auszeichnung
- 2017 - Vorbildliche Bauten im Land Hessen
- Nominierung und Shortlist
- 2017 - DAM Preis für Architektur in Deutschland

















