SPiN-Bau, Fraunhofer-Institute IBP/IAO
Nobelstraße 22, Stuttgart, Germany
LPH: 2-8
BGF: 5.501 m²
NUF 1-7: 3.099 m²
BRI: 29.514 m³
4 Geschosse
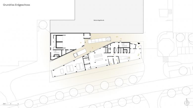
Der Erweiterungsbau »Stuttgarter Plattform für innovatives und nachhaltiges Bauen« – SPiN-Bau – für die Fraunhofer-Gesellschaft befindet sich auf dem Gelände des Institutszentrums Stuttgart und bietet den Mitarbeitern Platz für exzellente Forschungsarbeit. Gemäß dem Forschungsschwerpunkt der Institute leistungsfähige und -fördernde Arbeitssysteme für nachhaltige Gebäude zu entwickeln, werden im SPiN-Bau vorrangig bauphysikalische Mess- und Versuchsräume, Büro- und Experimentalräume verortet.
Herzstück des SPiN-Bau ist ein Fassadenprüfstand in der dreigeschossigen Halle des FuCon. Vier massive, schallentkoppelte Empfangsräume, die in eine offene „Stahlbetoneinhausung“ integriert sind, ermöglichen eine flexible Nutzung. Die präzise Einrichtung der Empfangsräume sowie die Anschlüsse für Prüffassaden und die variablen Deckenelemente wurden nach den unterschiedlichen Prüfszenarien konzipiert. So können die Deckenelemente zur Simulierung verschiedener Geschosshöhen flexibel angebracht, wiederverwendet und schadensfrei aufbewahrt werden. Die gesamte Hallenfläche wird von einem großen Kran mit einer Tragkraft von 10t bedient.
Eine zentrale Haupttreppe, die sogenannte Himmelsleiter dient als Kommuniktationsbereich und wird durch ein Oberlicht natürlich belichtet. Die Gestaltung ist zurückhaltend mit naturbelassenen Oberflächen aus Beton, Stahl und Glas. Die Oberflächen der Wände und Decken werden entsprechend dem Charakter des jeweiligen Materials gestaltet. Der Neubau erhält den Charakter eines Werkstattgebäudes, um spätere Aus- und Umbauten leicht umsetzbar zu machen.
- Architects
- DORANTHPOST Architekten GmbH
- Year
- 2023
- Project Status
- Built
















