Taipei Performing Arts Center

Xìngchéng St, Taipei, Taiwan
OMA / Rem Koolhaas and David Gianotten’s Taipei Performing Arts Center Completes
Video © Shephotoerd Co. Photography, courtesy of OMA
Photo © OMA by Chris Stowers

Why have the most exciting theatrical events of the past 100 years taken place outside the spaces formally designed for them? Can architecture transcend its own dirty secret, the inevitability of imposing limits on what is possible?

In recent years, the world has seen a proliferation of performance centres that, according to a mysterious consensus, consist of more or less an identical combination: a 2,000-seat auditorium, a 1,500-seat theatre, and a black box. Overtly iconic external forms disguise conservative internal workings based on 19th century practice (and symbolism: balconies as evidence of social stratification). Although the essential elements of theatre– stage, proscenium, and auditorium– are more than 3,000 years old, there is no excuse for contemporary stagnation. TPAC takes the opposite approach: experimentation in the internal workings of the theatre, producing (without being conceived as such) the external presence of an icon.

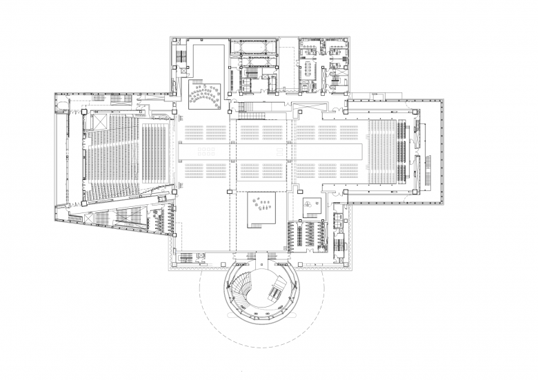
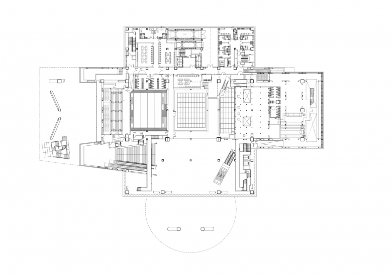
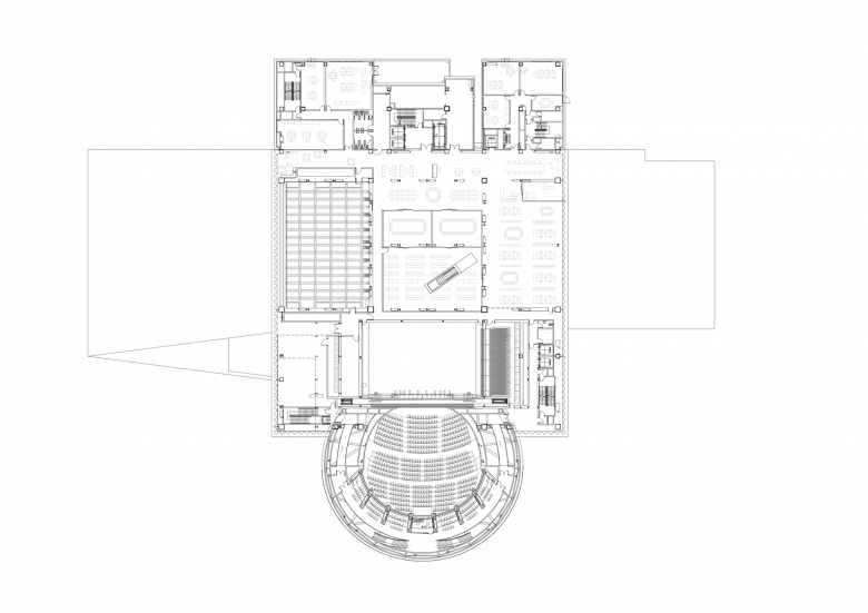
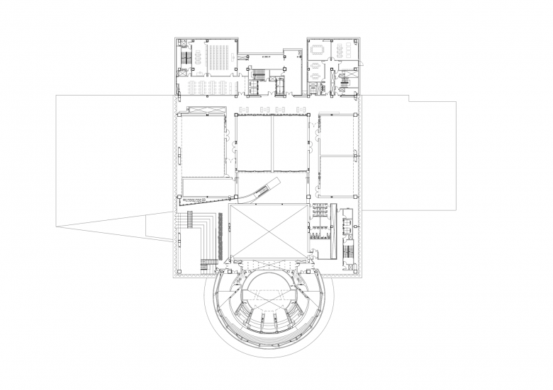
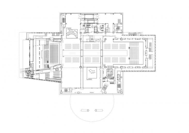
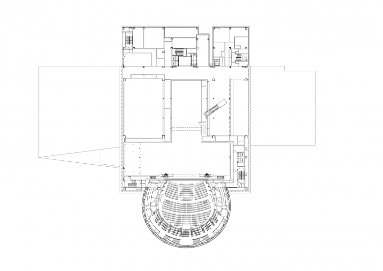
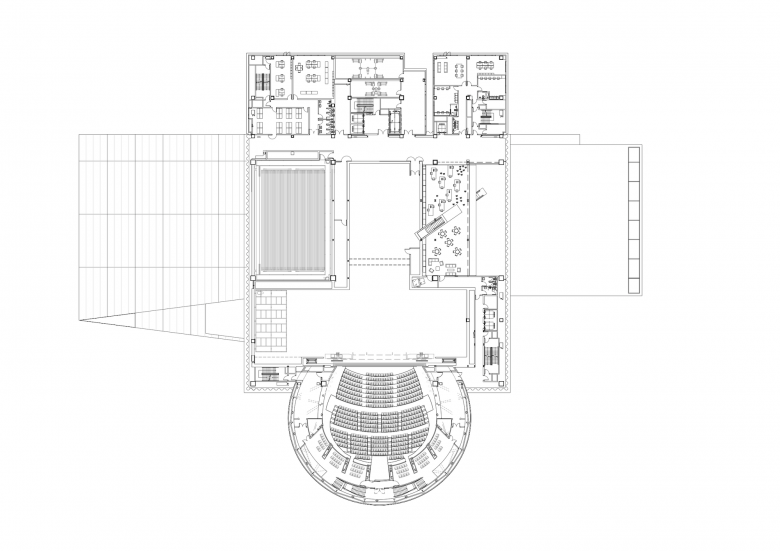
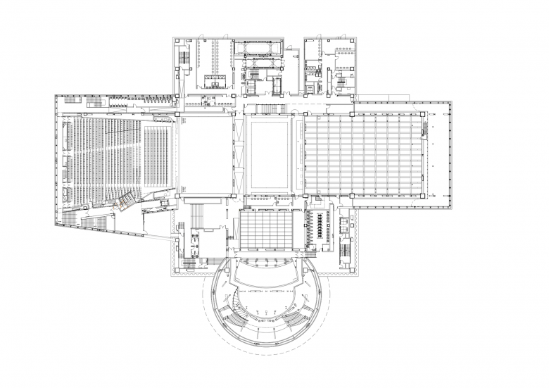
TPAC consists of three theatres, each of which can function autonomously. The theatres plug into a central cube, which consolidates the stages, backstages and support spaces into a single and efficient whole. This arrangement allows the stages to be modified or merged for unsuspected scenarios and uses. The design offers the advantages of specificity with the freedoms of the undefined.

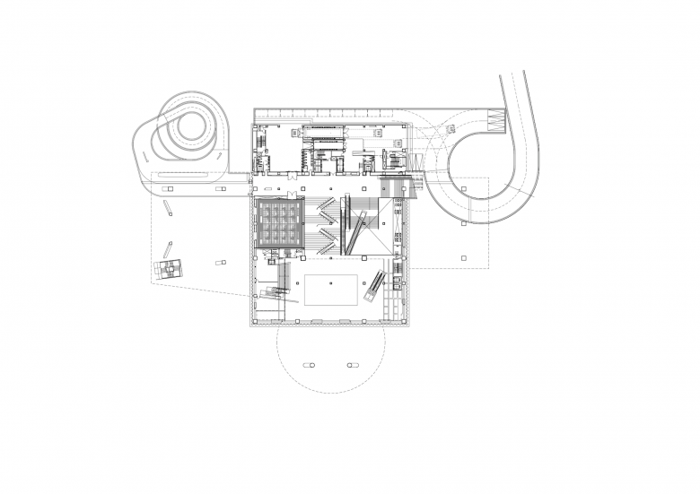
Performance centres typically have a front and a back side. Through its compactness, TPAC has many different “faces,” defined by the individual auditoria that protrude outward and float above this dense and vibrant part of the city. The auditoria read like mysterious, dark elements against the illuminated, animated cube that is clad in corrugated glass. The cube is lifted from the ground and the street extends into the building, gradually separating into different theatres.

The Proscenium Playhouse resembles a suspended planet docking with the cube. The audience circulates between an inner and outer shell to access the auditorium. Inside the auditorium, the intersection of the inner shell and the cube forms a unique proscenium that creates any frame imaginable.

The Grand Theatre is a contemporary evolution of the large theatre spaces of the 20th century. Resisting the standard shoebox, its shape is slightly asymmetrical. The stage level, parterre, and balcony are unified into a folded plane. Opposite the Grand Theatre on the same level, the Multiform Theatre is a flexible space to accommodate the most experimental performances.

The Super Theatre is a massive, factory-like environment formed by coupling the Grand Theatre and Multiform Theatre. It can accommodate the previously impossible ambitions of productions like B.A. Zimmermann’s opera Die Soldaten (1958), which demands a 100-metre-long stage. Existing conventional works can be re-imagined on a monumental scale, and new, as yet unimagined forms of theatre will flourish in the Super Theatre.

The general public—even those without a theatre ticket—are also encouraged to enter TPAC. The Public Loop is trajectory through the theatre infrastructure and spaces of production, typically hidden, but equally impressive and choreographed as the “visible” performance. The Public Loop not only enables the audience to experience theatre production more fully, but also allows the theatre to engage a broader public.

Photo © OMA by Chris Stowers
Photo © OMA by Chris Stowers
Photo © OMA by Chris Stowers
Photo © OMA by Chris Stowers
Photo © OMA by Chris Stowers
Photo © Shephotoerd Co. Photography, courtesy of OMA
Photo © OMA by Chris Stowers
Photo © OMA by Chris Stowers
Grand Theater
Photo © Shephotoerd Co. Photography, courtesy of OMA
Grand Theater
Photo © Shephotoerd Co. Photography, courtesy of OMA
Super Theater
Photo © OMA by Chris Stowers
Super Theater
© OMA by Chris Stowers
Photo © Shephotoerd Co. Photography, courtesy of OMA
Globe Playhouse
Photo © OMA by Chris Stowers
Globe Playhouse
Photo © OMA by Chris Stowers
Photo © Shephotoerd Co. Photography, courtesy of OMA
Photo © Shephotoerd Co. Photography, courtesy of OMA
Photo © Shephotoerd Co. Photography, courtesy of OMA
Drawing © OMA
Drawing © OMA
Drawing © OMA
Drawing © OMA
Drawing © OMA
Drawing © OMA
Drawing © OMA
Drawing © OMA
Drawing © OMA
Drawing © OMA
Drawing © OMA
Drawing © OMA
Drawing © OMA
Drawing © OMA
Drawing © OMA
Drawing © OMA
Drawing © OMA
Drawing © OMA
Drawing © OMA
Architects
OMA - Office for Metropolitan Architecture
Year
2022
Project Status
Under Construction
Client
Taipei City Government
Team
Rem Koolhaas, David Gianotten, Ole Scheeren, André Schmidt, Mariano Sagasta and Adam Frampton, with: Erik Amir, Josh Beck, Jean-Baptiste Bruderer, David Brown, Andrew Bryant, Steven Chen, Dan Cheong, Ryan Choe, Antoine Decourt, Mitesh Dixit, Pingchuan Fu, Alexander Giarlis, Richard Hollington, Shabnam Hosseini, Sean Hoo, Takuya Hosokai, Miguel Huelga, Nicola Knop, Chiaju Lin, Sandra Mayritsch, Vincent McIlduff, Alexander Menke, Ippolito Pestellini, Gabriele Pitacco, Shiyun Qian, Joseph Tang, Agustin Perez-Torres, Xinyuan Wang, Ali Yildirim, Patrizia Zobernig
ARCHITECT OF RECORD
Artech Architects
THEATRE CONSULTANT
dUCKS scéno, Creative Solution Integration Ltd.
ACOUSTIC CONSULTANT
DHV
LANDSCAPE DESIGNER, INTERIOR DESIGNER
Inside Outside
STRUCTURE, MEP, BUILDING PHYSICS, FIRE ENGINEER
Arup
STRUCTURAL ENGINEER
Evergreen Consulting Engineering Inc.
SERVICES ENGINEER
Heng Kai Inc., IS Leng and Associates Engineers
Taiwan Fire Safety Consulting Ltd.
FIRE ENGINEER
LIGHTING CONSULTANT
Chroma 33
FACADE ENGINEER
ABT, CDC Inc.
SUSTAINABILITY CONSULTANT
Segreene Design and Consulting
GEOTECHNICAL ENGINEER
Sino Geotech
TRAFFIC CONSULTANT
Everest Engineering Consultants Inc.

Related Projects 

  • Moos
    playze
  • Reiters Reserve Premium Suites
    BEHF Architects
  • Erweiterung und Instandsetzung Hallenbad Altstetten
    MIYO Visualisierung
  • Neubau von fünf Einfamilienhäusern
    Bäumlin + John Architekten ETH/SIA
  • The Forge at 105 Sumner Street in London
    Kiefer Klimatechnik GmbH

Magazine 

Other Projects by OMA - Office for Metropolitan Architecture 

Toranomon Hills Station Tower
Tokyo, Japan
WA Museum Boola Bardip
Perth, Australia
Axel Springer Campus
Berlin, Germany
Prince Plaza
Shenzhen, China
Garage Museum of Contemporary Art
Moscow, Russia