Tiantai Museum


0ver the centuries, the coexistence of three religions - Confucianism, Buddhism and Taoism - have enriched the landscapes surrounding Tiantai Mountain, located in the coastal province of Zhejiang. Like a miniature summarizing the mountain 's history and civilization, the new museum integrates the functions of exhibition, research, education and entertainment. Far from the more analytical rationalism, and distant also from the most historicist traditionalism of the “Chinese National Style”, the design of this museum has followed two very reasonable guidelines: firstly, to organize space according to the needs of the program and, secondly, to keep in mind the topological characteristics of the terrain.

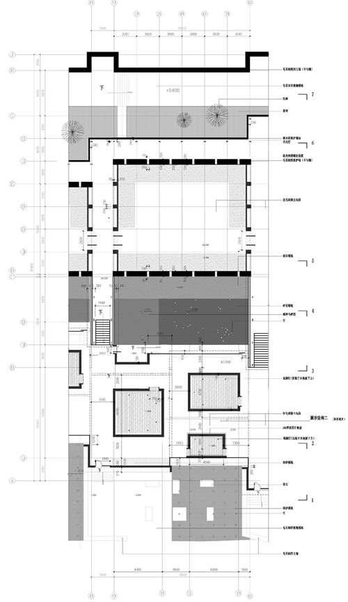
    The first research has led to two different types of exhibition spaces, which are clearly distinguishable on plan, depending on whether they serve to exhibit sculptures and other three-dimensional objects or to display paintings and manuscripts. The first kind of exhibition requires volume, whereas the second demands surface, thereby generating two different types of halls. On the one hand, larger ones consisting of porticoed structures with a great span - to exhibit objects -and on the other, smaller halls made up of load bearing walls, which provide the surface upon which to display paintings. The variety of sizes needed for display is achieved in a different way in each one of the types. The porticoed halls address an increasingly homothetic rule, which also serves to shape the exterior entry area, whereas the halls made up of load bearing walls respond to a pattern that repeats itself along a diagonal. Three courtyards, sharing both structural natures, perform as hinge and as separation among the two groups.

For its part, the analysis of the terrain, the concern with the surfaces and the space around the museum has led to an organization of the complex into three bands: one follows the nearby road, another constitutes the central volume and the last one looks onto the river. The first one is built as an elongated and paved square, the second is the museum itself- administration and exhibition spaces included- and, finally, the third comprises a series of galleries affording views onto the water. The search for roots as an architectural ideal, shown in the use of local materials and techniques, does not keep the end product from being closer to vernacular and ingenious modernity than to historicism.



 



Location: Tiantai, Zhejiang

Client: Tiantai Museum

Architect: Wang Lu

Project Team: Jia Lianna, Chen Long

Cooperation: Zhejiang Jiajing Design and Research Institute

Structure and Material: Reinforced concrete frame with partial steel frame and stone walls

Site Area: 17.406 sqm

Floor Area: 5073 sqm

Cost: 12.000.000 RMB

Design Period: 2000-2001

Completion: 2003

Photos: Gao Hongqi, Wang Lu

 

Architects
in+of architecture
Year
2003

Related Projects 

  • Secondary School Schulstraße
    Kronaus Mitterer Architekten
  • GROHE Water Experience Center
    D’art Design Gruppe GmbH
  • Limmatquai 4
    Kästli Storen
  • Primary School Erlaaer Schleife
    Kronaus Mitterer Architekten
  • Ortsdurchfahrt Domat/Ems
    Luminum GmbH

Magazine 

Other Projects by in+of architecture 

Ningbo Museum
Ningbo, China
Museum of Mao Badges
Anren, China
Gulou Shopping Plaza
Tianjin, China