Umbau Hofhaus in Neunkirch

Neunkirch, Switzerland
Photo © Vladimir Vlajnic

Mitten im Hinterhof auf einem Grundstück in der Dorfkernzone Neunkirch entsteht ein kleiner Hofbau als Altersresidenz. Der bewusste Entscheid der Bauherrin, vom belebten Herrenhaus in dessen Hinterhof zu ziehen, ermöglicht die Umnutzung eines einstigen Gartenschuppen zu einem kleinen Wohnhaus für den fortgeschrittenen Lebensabschnitt. Im grossräumigen Stadtrandhaus wird so Platz für neue Familien geschaffen. Ein regenerativer Kreislauf der Wohnform verschiedener Generationen entsteht. Das, durch den Umbau neu gewonnene, bewohnbare Bauvolumen leistet einen wichtigen Beitrag zur Verdichtung im Bestand. Die sumpfige Senke im Norden des Hofbaus wird zum selbstreinigenden Schwimmteich erweitert. Es entsteht eine Gartenanlage, die den Bewohnern des transformierten Hofbaus gleichermassen wie denjenigen des Herrenhauses zu Verfügung steht.

Das Gebäude schmiegt sich harmonisch an die bestehende Bruchsteinwand und implementiert sie in die Tragstruktur. Ein vernakulärer Charakter entsteht über die gesamte Gebäudelänge. Die Gliederung der Nutzung in private Räumlichkeiten im Obergeschoss und öffentliche Räume im Erdgeschoss lässt sich klar erkennen. Fürs Alter entwickelte Raumabfolgen bieten mannigfaltige Nutzungen bis hin zur reduzierten Wohnform als ebenerdiges, eingeschossiges Studio. Kontemporär und langlebig soll die Umnutzung sein - so der Wunsch der Bauherrin. Entsprechend agiert der Hofbau für künftige Generationen auch als Single oder Paar-Haus. Die minimale Fläche soll sinnbildlich die Frage nach der Genügsamkeit an materiellen Werten aufwerfen.

Das bestehende Natursteinmauerwerk bildet die Tragkonstruktion für die quer gespannte Holzbalkendecke sowie Auflager für die Dachkonstruktion. Durch den monolithischen Deckenaufbau über dem Erdgeschoss (ehemalige Dachsparren, Föhre) wird der CO2 Verbrauch auf ein Minimum reduziert und im Werkstoff Holz gespeichert. Das Obergeschoss, welches ohne Fussbodenheizung ausgerüstet ist, wird passiv vom darunterliegenden Geschoss mitbeheizt und temperiert. So sind die Temperaturzonen optimal an die differenzierten Nutzungen und die Bedürfnisse der Bewohnenden angepasst. Die Energie fürs Heizen kommt über die zentrale Schnitzelheizung im Herrenhaus.

Die Verwendung ausschliesslich lokaler und naturbelassener Materialien (hauptsächlich Föhre / Lehm) aus der Region entspricht einerseits ganz der gewünschten Philosophie der Bauherrschaft, und ermöglicht andererseits ein natürliches Klima, welches atmet und entsprechend die Raum- und Luftqualität positiv prägt und aktiv beeinflusst.

Photo © Vladimir Vlajnic
Photo © Vladimir Vlajnic
Photo © Vladimir Vlajnic
Photo © Vladimir Vlajnic
Photo © Vladimir Vlajnic
Photo © Vladimir Vlajnic
Photo © Vladimir Vlajnic
Photo © Vladimir Vlajnic
Photo © Vladimir Vlajnic
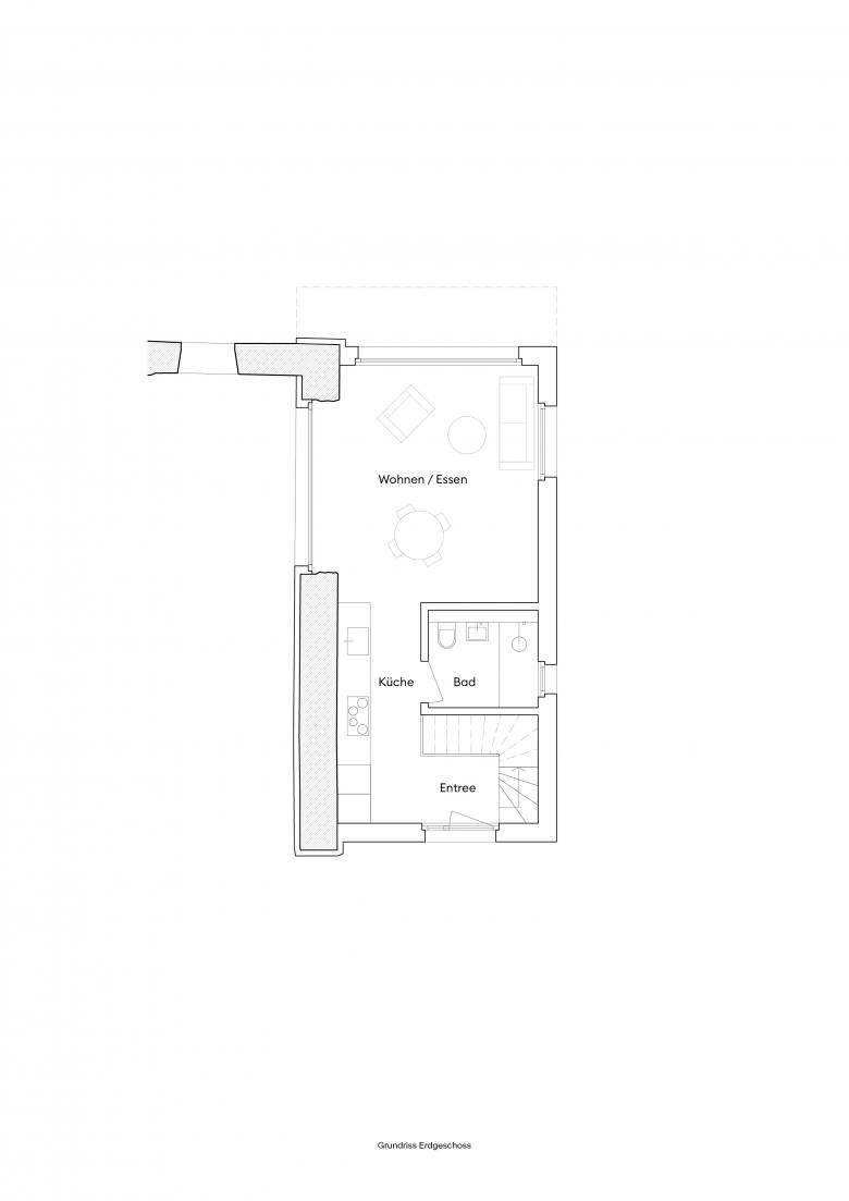
Drawing © Bareiss Architektur AG
Drawing © Bareiss Architektur AG
Drawing © Bareiss Architektur AG
Drawing © Bareiss Architektur AG
Architects
Bareiss Architektur AG
Year
2024
Project Status
Built

Related Projects 

  • Secondary School Schulstraße
    Kronaus Mitterer Architekten
  • GROHE Water Experience Center
    D’art Design Gruppe GmbH
  • Limmatquai 4
    Kästli Storen
  • Primary School Erlaaer Schleife
    Kronaus Mitterer Architekten
  • Ortsdurchfahrt Domat/Ems
    Luminum GmbH

Magazine 

Other Projects by Bareiss Architektur AG 

Neubau Wohnhaus in Gutmadingen
Gutmadingen, Switzerland
Neubau Kellerei in Wilchingen
Wilchingen, Switzerland
Neubau Häuser im Gatter
Thayngen, Switzerland
Neubau Wohnhaus in Stetten
Stetten, Switzerland
Umbau Häuser im Gatter
Thayngen, Switzerland