VHS Ottakring
Ludo-Hartmann-Platz 7, Wien, Austria
Es sollte ein Ort für Bildung und modernes Lernen geschaffen werden, der über eine hohe Aufenthaltsqualität verfügt und bei aller Funktionalität, Ausformung und Neugestaltung nicht an Authentizität verliert. Denn als erste Volkshochschule Europas, 1905 von Franz Ritter von Neumann entworfen, hat das Gebäude nie an Imposanz verloren. So lag der Fokus der Sanierung, des Um- und Zubaus und der technischen Ertüchtigung darin, Ursprüngliches zu erhalten und Neues zuzulassen.
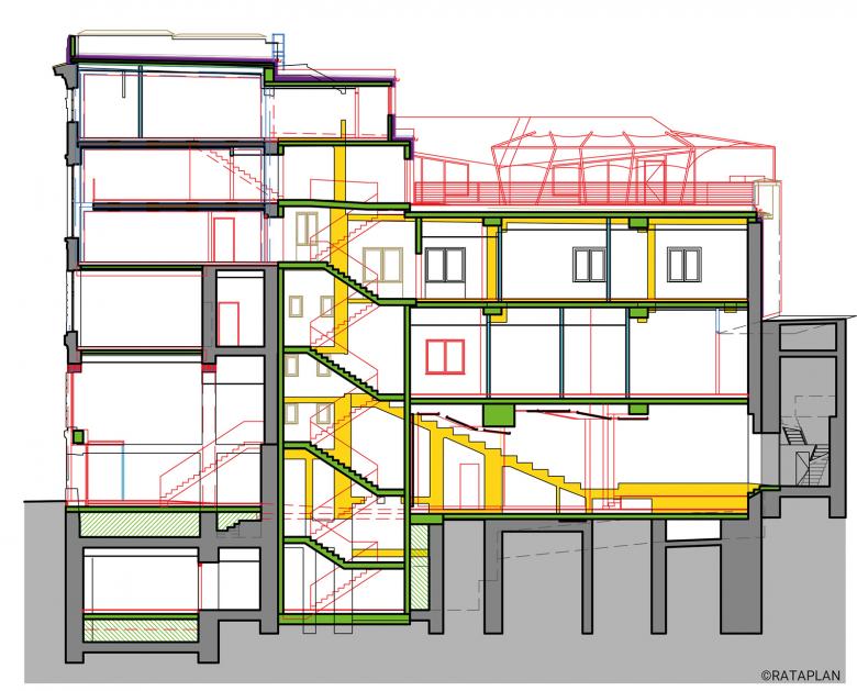
Während denkmalgeschützte Gebäudeteile wie die Fassade, der historische Haupteingang und das zentrale Stiegenhaus bei der Erneuerung weitestgehend in ihrer Ursprünglichkeit erhalten blieben, wurde die Raumstruktur im Inneren verändert und ergänzt, um die Barrierefreiheit zu gewährleisten. Eine Aufgabe, die wegen der komplexen Split-Level-Struktur über 13 Ebenen und des komplett bebauten, tortenstückförmigen Grundstücks zur Herausforderung wurde. Mit einem neuen repräsentativen Eingang in der Neumayrgasse und einem innen liegenden Aufzug ist der barrierefreie Zugang nach dem Umbau nun für alle Gäste möglich – dies gilt auch für den großen Hilde-Weinberger-Saal, in dem ca. 200 Personen Platz finden. Kurs- und Verwaltungsbereiche sind nun klar voneinander getrennt – außerdem optimiert das neue Raumorganisationsprogramm die Platzierung von Räumen mit speziellen Anforderungen, so zum Beispiel für Musik- oder Bewegungskurse, sowie für die Pausen- und Aufenthaltsgestaltung oder die Kinderbetreuung. Darüber hinaus lädt das historische Vestibül nun zum Verweilen ein. Zur Umsetzung aller Gegebenheiten musste das Brandschutzkonzept komplett neu aufgesetzt werden – wichtigste Ergänzungen diesbezüglich sind zwei neue Stiegenhäuser, die ausreichend Fluchtwege bieten.
Highlight „Wolke 16“
Das neue Herzstück der Volkshochschule Ottakring ist die auf einer ehemals brachliegenden Dachfläche im Hoftrakt gelegene „Wolke 16“ – ein Veranstaltungsbereich, der mit Style, Flexibilität, begrünter Beschattung und Terrassenflächen überzeugt. Ein großer Multifunktionsraum und ein Sozialraum sind so angeordnet, dass sie bei Bedarf verbunden werden können. Beide Räume verfügen über einen Direktzugang zur umlaufenden Dachterrasse, die nicht nur Weitblick über den 16. Bezirk, sondern auch Verweilmöglichkeiten mit schattenspendender Begrünung bietet.
Nettonutzfläche 2.499 m² und Nettogrundfläche 4.024 m² (vor dem Umbau 2.361 m² und 3.345 m²)
Auszeichnung: Bravourleistung Silber Wr. Stadterneuerungspreis 2025 der Landesinnung Bau Wien, 2. Platz
- Architects
- RATAPLAN
- Year
- 2024
- Project Status
- Built
- Client
- MA 19
- Team
- Nik Stützle, Otto Arnold, Stefan Münster, Katharina Wörgötter
- GU Baumeister & Dach
- Dipl.Ing. Wilhelm Sedlak GesmbH
- Baumanagement
- MA 34
- Generalkonsulent (Statik, TGA,...)
- iC Consulenten Ziviltechniker GesmbH
- Bau KG
- Draxler & Dallhammer ZT GmbH















