Villa am Schlachtensee

Photo © David Hiepler und Fritz Brunier

Für eine vierköpfige Familie haben wir die Vorstadt-Villa aus dem Jahr 1890 umfassend saniert und umgebaut. Die Familie wünschte sich einerseits den Charm der Altberliner Villa, mit ihren Holzböden, hohen Räumen und Türen, andererseits bestand ebenso der Wunsch nach einem modernen, lichten Raum für das gemeinsame Kochen und Essen. Der baufällige, in späteren Jahren hinzugefügte Anbau des Hauses wurde abgetragen und durch eine moderne Erweiterung ersetzt, welche in der Gartenetage die grosse Wohnküche und in der darüber liegenden Etage das Eltenschlafzimmer beherbergt. Alle Etagen im Haus wurden modernisiert und die Grundrisse teilweise umgestaltet. Der alte Dachstuhl, welcher mit giftigem Holzschutzmittel behandelt war, wurde abgetragen und durch einen neuen ersetzt. Das Dach wurde dabei etwas angehoben, um auch im Dachgeschoß Aufenthaltsqualität zu erhalten.

Photo © David Hiepler und Fritz Brunier
Photo © David Hiepler und Fritz Brunier
Photo © David Hiepler und Fritz Brunier
Photo © David Hiepler und Fritz Brunier
Photo © David Hiepler und Fritz Brunier
Photo © David Hiepler und Fritz Brunier
Photo © David Hiepler und Fritz Brunier
Photo © David Hiepler und Fritz Brunier
Photo © David Hiepler und Fritz Brunier
Photo © David Hiepler und Fritz Brunier
Photo © David Hiepler und Fritz Brunier
Photo © David Hiepler und Fritz Brunier
Photo © David Hiepler und Fritz Brunier
Photo © David Hiepler und Fritz Brunier
Photo © David Hiepler und Fritz Brunier
Photo © David Hiepler und Fritz Brunier
Photo © David Hiepler und Fritz Brunier
Photo © David Hiepler und Fritz Brunier
Photo © David Hiepler und Fritz Brunier
Photo © David Hiepler und Fritz Brunier
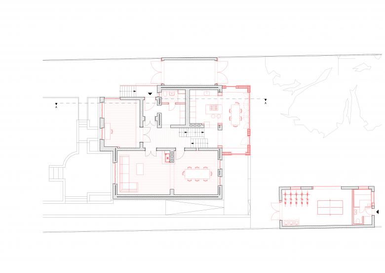
Erdgeschoss
Drawing © CAMA A
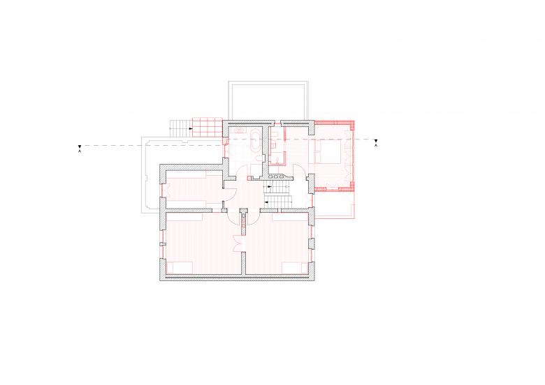
Obergeschoss
Drawing © CAMA A
Dachgeschoss
Drawing © CAMA A
Straßenansicht
Drawing © CAMA A
Gartenansicht
Drawing © CAMA A
Seitenansicht
Drawing © CAMA A
Seitenansicht
Drawing © CAMA A
Schnitt
Drawing © CAMA A
Architects
CAMA A
Year
2020
Project Status
Built

Related Projects 

  • Moos
    playze
  • Reiters Reserve Premium Suites
    BEHF Architects
  • Erweiterung und Instandsetzung Hallenbad Altstetten
    MIYO Visualisierung
  • Neubau von fünf Einfamilienhäusern
    Bäumlin + John Architekten ETH/SIA
  • The Forge at 105 Sumner Street in London
    Kiefer Klimatechnik GmbH

Magazine 

Other Projects by CAMA A 

Haus S
Berlin, Germany
Laze Ziestsee House
Bindow, Germany
Haus Spießergasse
Berlin, Germany
F_36
Berlin, Germany
House_S
Bad Wörishofen, Germany