Zhou Chunya Art Academy

Jiading District is one of the 18 districts of Shanghai in the North-West of Downtown. The district includes several towns, like Anting, known for its focus on car industries. But the district also has some rural villages based on intensive agriculture with huge orchards and vineyards. In order to develop the villages as a basis for cultural industries, vice mayor Sun Jiading invited some well-known artists like Zhou Chunya, Ding Yi, Yue Minjun and Ai Weiwei to built their studio there. In the case of Ai Weiwei, the studio was destroyed by officials end of last year, because they argued he had no proper building permits. Ironically the invitation for the building was given to him on the same basis as to the other artists.

The original idea was simple and clear. With the placement of celebrated artists amidst the vineyards the creative industries should become the backdrop for the new economic development.

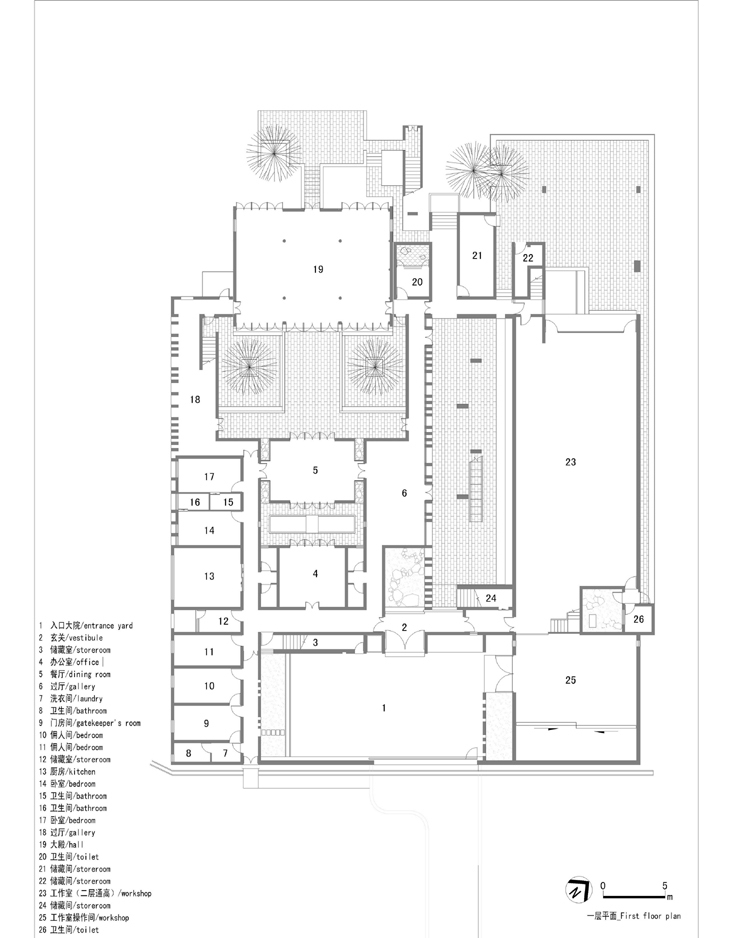
Last year also the Zhou Chunya Art Academy, designed by Shanghai based Tong Ming Studio, was finished. The plot of land is surrounded on three sides by water and includes a garden, connected to the house with a zigzag bridge across the canal. The main part of the complex was composed around an existing and renovated historic building with white walls, a dark tile gable roof and wooden front façade. The radical reduced volumes in concrete stand in full contrast to the traditional appearance of the saved old building. From the entrance courtyard the central door to the complex is opposed by a rock composition, which reminds the art of rock composition in traditional garden art. The one storey left wink of the complex consists of bedrooms and facilities for guests, including gallery space and a big hall in the traditional building. The new parts are composed in axis to the old building and formed around several courtyards. For the flooring in the courts black bricks are used. A narrow long courtyard separates the double volume studio wing from the residence area. From here an outdoor connection leads across the mentioned bridge into the garden with a new wooden pavilion near the water. The huge studio space is closed on the main façade and only opens on the level of the roof terrace and the front. With a shed roof the daylight is controlled and direct sunlight can be avoided in the studio. From the different courts as well as from the interior, stairways led to the roof terrace with a fabulous view across the orchards of the surrounding landscape with its myriads of waterways. The flooring at the terrace is also made of black-grey bricks. Two further bedrooms for guests and a study room with a long small window that forms a frame for the view across the landscape are reached at the second floor on the side of the entrance. Behind the double volume space of the main studio a private flat for the artist, with view across the garden and waterways, completes the composition. The concrete as material for walls, ceiling and floor is processed very carefully. The holes of the form boards decorate the walls with their regular pattern. The light grey colour stays in strong contrast to the lush green of the carefully composed plantings in the courts and the garden. Underneath the living unit of the artist, a covered platform by the water creates a pleasant outdoor space, accessible directly from the big studio. The various paths around the building and the different courts and public spaces, provide multiple possibilities for the users. From private contemplation to public parties and events many different stages can be arranged according to the need.

The architecture stands naturally in strong contrast to the village buildings. Its solid appearance in concrete with rather small openings and the compact form speak of a new area that is meant to catapult the native farmers into 21st century. But what will be their role in the future? And can a few artists pull the rural countryside into a prosperous park for creative industries? The case of the studio of Ai Weiwei has shown that it is not up to the architect or artist, but to politics and the local party-members, how and with which means the needed development will take place. All those planed and already build studios depend on communication with the global audience if they will have an impact on the future creative development in China. Therefore the atmosphere has to be liberal and open, because foreign capital is a very shy species and will only be invested in such development with a stable and foreseeable future.

Location: Dayu Village, Jiading District, Shanghai

Client: Zhou Chunya

Architect: Tong Ming / TM Studio

Collaborator: Nanjing Zoomar Architects Office

Project Team: Tong Ming, Huang Xiaoying

Build Area: 1,460 sqm

Design Period: 01/2008–08/2009

Construction Period: 08/2008–04/2010

Photographer: Lu Hengzhong

Architects
TM Studio
Year
2010
Project Status
Built

Related Projects 

  • Moos
    playze
  • Reiters Reserve Premium Suites
    BEHF Architects
  • Erweiterung und Instandsetzung Hallenbad Altstetten
    MIYO Visualisierung
  • Neubau von fünf Einfamilienhäusern
    Bäumlin + John Architekten ETH/SIA
  • The Forge at 105 Sumner Street in London
    Kiefer Klimatechnik GmbH

Magazine 

Other Projects by TM Studio 

TM Studio Office
Shanghai, China
Park Block Renovation
Taizhou, China
Ten Courtyard Houses
Suzhou, China
Dongs’ House Restaurant
Suzhou, China
Suquan Yuan
Suzhou, China