Berliner Medizinhistorisches Museum der Charité
Umbau und Transformation des denkmalgeschützten Museumsgebäudes am Campus Charité in Berlin Mitte
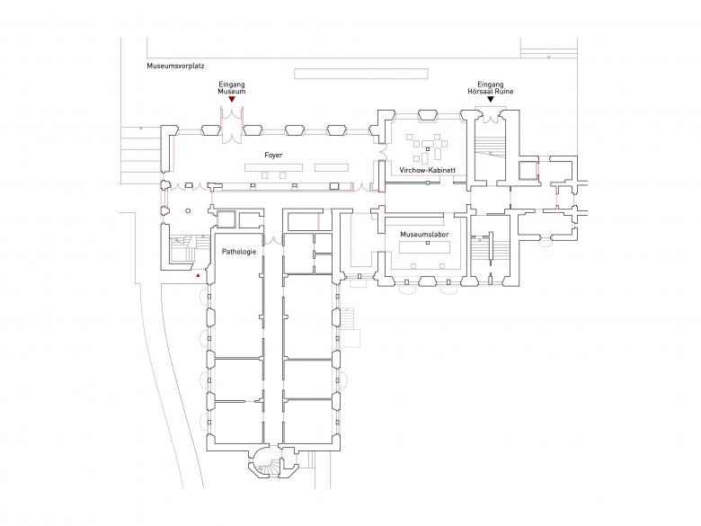
Die Gesamtkonzeption transformiert das denkmalgeschützte Museumsgebäude zeitgemäß in das 21. Jahrhundert. Der Museumsumbau zeigt unsere Haltung im Umgang mit Bestand, im Sinne eines »schöpferischen Weiterbauens«. Bestehende Elemente werden angemessen entfernt »Subtraktion« und neue architektoni- sche Elemente hinzugefügt »Addition«. Wesentliche Maßnahmen umfassen die strukturelle Veränderung der Eingangssituation, die Schaffung eines Vorplatzes, ein Portal aus Baubronze, sowie das Öffnen der Fassade durch großformatige Fenster »Schauvitrinen«.
Das gesamte Gebäude wird umfassend umgebaut und saniert. Das vierte Obergeschoss und das Dachgeschoss werden zu großzügigen Objektdepots ausgebaut. Die Backsteinfassade wird über zwei Geschosse mit großformatigen, sechs Meter hohen gläsernen »Schauvitrinen« aus brünierter Baubronze geöffnet. Die Entwurfsidee basiert auf der Virchowschen Präparatesammlung. Rudolf Virchow hatte bereits 1899 zur Museumsgründung eine beeindruckende dreidimensionale Sammlung mit 23.000 Präparaten geschaffen. Durch die neuen »Schauvitrinen« kann das Museum die Inhalte seiner Sammlung nach außen, in den Stadtraum präsentieren.
Ein großer neuer Vorplatz aus Granit schafft ein zeitgemäßes Vorfeld und ver- bindet den neuen Museumseingang mit dem Eingang zur historischen Hörsaalruine. Das Erdgeschoß wird zu einem großzügigen Foyer mit Empfangsbereich und Museumsshop umgebaut und mit einem Virchow-Kabinett und einem offenen Schaulabor ergänzt. Die kleinteilige Raumstruktur des Bestandes wird aufgelöst, großzügige Raumgefüge transformieren das Gebäude zeitgemäß.
Im ersten Obergeschoss entstehen neue Wechselausstellungsräume für den internationalen Ausstellungsbetrieb. Die Dauerausstellungsräume im zweiten und dritten Obergeschoss werden technisch und klimatisch grundlegend ertüchtigt.
Am 15. Juni 2023 wurde das Museum wiedereröffnet und führt die Besucher durch 300 Jahre Medizingeschichte.
- Year
- 2023
- Project Status
- Built
- Client
- Charité Universitätsmedizin Berlin













