Schulhaus Wallrüti
Das äusserst knappe Budget für den Schulhausneubau ergibt die Chance, Konventionen im Schulhausbau zu hinterfragen und auf inhaltlich-pädagogischer Ebene neue Wege einzuschlagen.
INSIDE - OUT
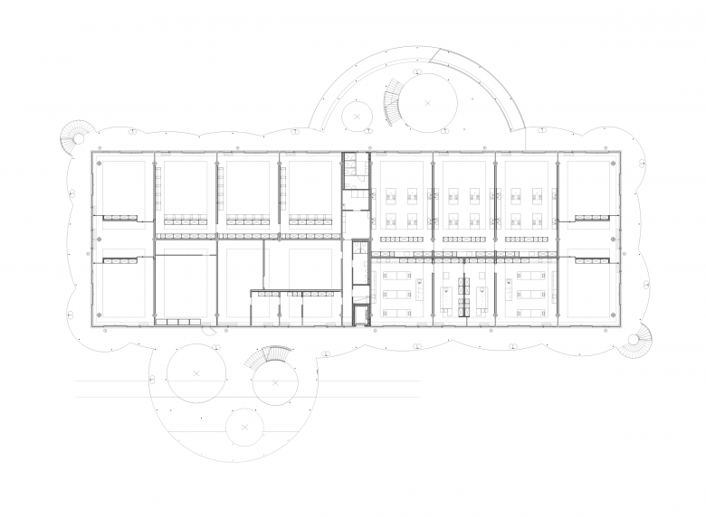
Mit einer einer einfachen Umstülpung der Erschliessung von Innen nach Aussen wird die Relation des Klassenzimmers zum Aussenraum neu definiert. Jedes Zimmer hat einen direkten Bezug zum vorgelagerten witterungsgeschützten Aussenraum: Ein dreigeschossiger Pausen- und Lernbereich in Form umlaufender ‹hängender Gärten›. Die Fensterfronten lassen sich im Sommer vollständig öffnen. Damit wird ein vergessenes pädagogisches Prinzip aus den 20er Jahren aufgenommen und in die heutige Zeit übersetzt: DIE FREILUFTSCHULE
INTERAKTION
Die Interaktion mit Aussen, mit dem umlaufenden
‹Erschliessungsgarten› und dem umgebenden baumbestandenen Grün ist die eine Seite der Medaille. Auf der anderen Seite entsteht durch das Weglassen der inneren Erschliessung aber auch eine unmittelbare Nähe unter den Klassenzimmern. Die jeweils in den inneren Ecken um eine zentrale Stütze angeordneten, raumhohen Doppelflügeltüren lassen sich bei Bedarf öffnen und die Klassenzimmer können so zu grösseren Einheiten oder Clustern verbunden werden. Oder es kann auch mal ein ganzes Geschoss mit einfachen Handgriffen in eine einzige, grosse Lernhalle verwandelt werden.
- Year
- 2023
- Project Status
- Built
- Client
- Departement Schule + Sport Winterthur, Amt für Städtebau Stadt Winterthur
- Team
- Ivo Hasler, Andreas Fluck, Dirk Podbielski, Samuel Aebersold, Zach Kimberling, Toshiya Suwa, Sara Davin Omar, Liuxin Yang, Marina Peneva
- Landschaftsarchitektur
- KOLB Landschaftsarchitektur GmbH
- Baumanagement
- BGS & Partner Architekten AG
- Bauingenieur
- Schnetzer Puskas Ingenieure AG
- Haustechnik
- Waldhauser + Hermann AG
- Sanitärplanung
- Bünder Hydroplan AG
- Elektroplanung
- Hefti Hess Martignoni AG
- Bauphysik
- Durable Planung und Beratung GmbH
- Signaletik
- Sarah Infanger, Visuelle Kommunikation










