Engadiner Museum
Redesign of the Engadiner Museum
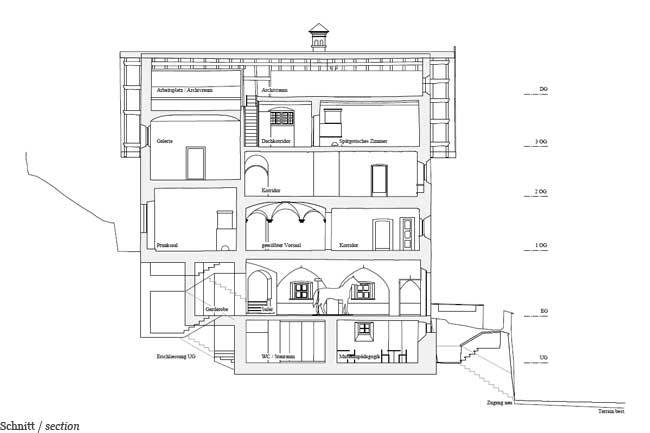
The Engadiner Museum, completed in 1906, houses an important collection of original interiors and objects of Engadine home decor. It has not undergone any substantial changes since, and has the air of a museum within a museum. While respecting the existing structure, a blend of old and new rouses the museum from its slumber. The new entrance gives the museum a stronger outward presence. Inside, the exhibition, lighting and signage concept strives to create a clearly perceptible difference between historical structure and new additions.
- Year
- 2011
- Project Status
- Built










