DDD HOTEL
A renovation project for a 37 year old business hotel in the Nihonbashi-Bakurocho area of Tokyo. Most of the business hotels in Japan have turned into simply a place only to sleep. In collaboration with the project team, our mission for this plan was to re-define what is needed for a contemporary business hotel.
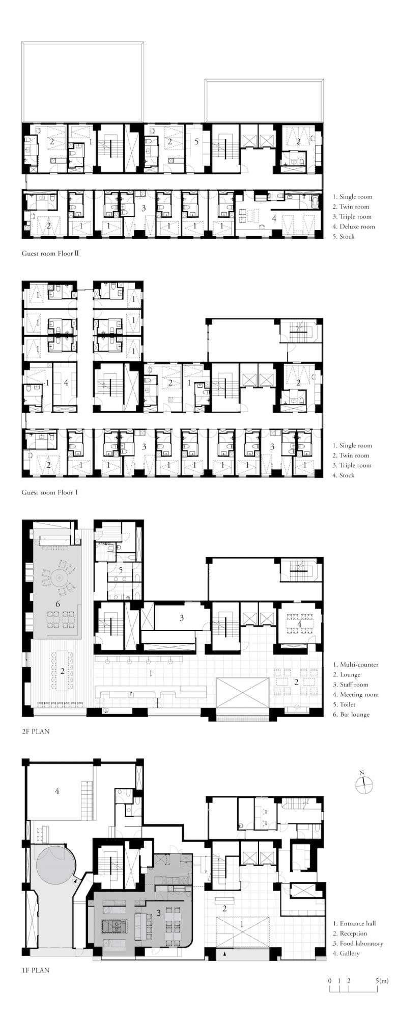
The key concepts for the hotel was first of all, a place for good sleep and to spend a relaxing quality time. Since this hotel was renovated for people living in this ever changing society, a quality space and time was the most prioritized, to prevent this from becoming just a place to sleep. Specifically, this hotel complex has a cafe counter with a barista, and an experimental kitchen for a collective of chefs based in French cuisine, and a former parking-lot converted into a contemporary art gallery. We have, along with the project team, defined a modern day “business hotel” as a place to provide good sleep and an environment to spend a rich time culture wise through its restaurant and gallery.
The original arched windows of the facade were kept. After entering the large entrance gate which was designed to fit the tone of the existing tiles, stands a simple lobby hall. We aimed to create a calm atmosphere where the visitors can reset their minds, by designing a place not by adding elements, but by subtracting and organizing the elements that are essential. The void above the lobby hall, which was once sealed in the hotels previous renovation, was rearranged using the original architectural structure. Indirect lighting was used to complete the simple characteristics of the space.
On the 2nd floor is a long counter which is the home to both the reception and the cafe function, welcomes the guests. This was formerly a floor for guest rooms, now converted into a common usage space. Though sacrificing a few rooms from its original, the common space was made into a different relaxing atmosphere compared to the guest rooms. Although the ceiling is low on this floor, due to the fact that it was a floor to accommodate guests, we replaced the facade side wall with a large window to maintain incoming sunlight to keep the entire floor bright.
For the 3rd floor and up, in contrast with the two floors below, we have strengthened the idea of a relaxing, resting space. The function of each room is kept to its minimum, but equipped with a high quality mattress, and the restroom/bathroom was finished with mosaic tiles in aim to make a relaxing environment. The moss green key color used throughout the hotel, can show different expressions depending on its lighting conditions. Bright green under the sunlight and the daylights, and a dark, deep but warm tone at the night. We designed a simple place, where our guests can feel various scenes from time to time.
Client: MARUTAYA Co., Ltd.
Type of Project: Renovation
Use: Hotel, Food laboratory, Gallery
Period: Oct 2017 – May 2019
Building area: 557.78m2
Floor area: 4614.47m2
Accommodation capacity: 122 rooms
Scale: 10 stories + 1 basement floor
Location: Tokyo, Japan
Direction: Aid Inc
Design: Koichi Futatusmata, Koichi Shimohira(CASE-REAL), Yasushi Arikawa(Partner)
Construction: Tanabe Kensetsu, TANK
Lighting Plan: BRANCH LIGHTING DESIGN (Tatsuki Nakamura)
Manufacture of Furniture: E&Y
Sign Design: Aid Inc
Amenity Coordination: Aid Inc
- Arte + Instalación + Exposición
- Museos + Galerías
- Salas de Exposiciones
- Hoteles + Hostales + Pensiones
- Año
- 2019
- Estado del proyecto
- Construido





























