Beyond Demolition
Dealing with adaptive reuse of building components, our work rethinks demolition practice by integrating materials from a source object, about to be demolished, into a target object. The developed methodology and aesthetics offer a solution for resource-efficient construction.
In light of global challenges such as climate change and scarcity of resources, demolition must be critically examined. It causes waste of resources and high CO₂ emissions. Despite building’s changing usage requirements – what alternatives to demolition exist? Our project explores the repurposing of an old fire station in Hanover, which is slated for demolition. Questioning this decision we analyze whether selective deconstruction of a condemned source building and the adaptive reuse of the target building can preserve and extend structures—rather than replacing them with new constructions.
"A common reason for demolishing buildings is the change in usage requirements. Given global challenges, demolition must be questioned, but what alternatives exist when a building no longer meets modern demands?
Adaptive reuse means repurposing an existing building for new uses.
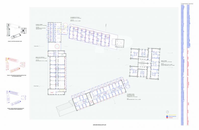
In our project, we focus on the repurposing of a former fire station. The city of Hanover plans to develop newly built residential housing on the site and demolish four buildings. However, an analysis shows that the buildings have architectural qualities and could meet the city's requirements through vertical extensions.
For the continued development of the buildings we are sourcing materials from a component repository—another building scheduled for demolition. This source building is located near the target site and is also owned by the city of Hanover. The components were scrutinized for reuse and will be incorporated into in combination with new materials.
Our focus lay on reinforced concrete frame construction, as this type of structure is most frequently demolished in Hanover. By means of preselected criteria, we evaluated component reusability in a prototype: the source object, a 1960s office building. This evaluation resulted in a component reuse rate of approx. 85%, with 5,076 components available for the design.
The result is an urban design with 68% reused components. This approach extends the life cycle of both the existing buildings as well as the components repurposed from the demolished building. The conversion of the site into flexible residential and public spaces enhances adaptability and significantly prolongs resource life.
This design study shows a methodology and aesthetics for building with reused components and offers a solution for buildings that are due for demolition."
- Estado del proyecto
- Diseño








