58 Social Housing
Travessera de Les Corts, 334-338, Barcelona, España
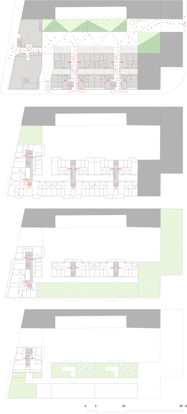
The project is configured on the basis of a triple objective:
1. Context – To give a response to the multiplicity of scales in the setting, by using the volumetric fragmentation and the layout (grouping and rhythm) of the façade window spaces and balconies.
2. Specificity – To provide each apartment with the corresponding specificity according to its placement in the building. avoiding form as a result of the addition of a single type.
3. Comfort – To use architectural form as a strategy of comfort, working with emptying the volume in order to guarantee maximum isolation and natural cross ventilation. in the south-facing façades, galleries with solar protection are placed, in order to regulate the energy exchange.
- Arquitectos
- flexoarquitectura
- Año
- 2009
- Estado del proyecto
- Construido














