Ahmedabad Management Association

Ahmedabad, India
Foto © HCPDPM

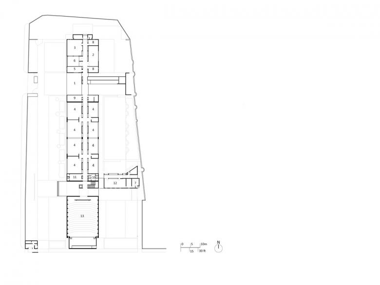
Located on a 3-acre plot in the ATIRA campus, Ahmedabad Management Association (AMA) provides a built-up area of 4180 sq. m. The client’s brief sought a functional and striking building which could consolidate AMA’s image as one of India’s most significant and active management associations.

In response to the client’s brief and the row of 8 existing shady Neem trees on the site; the building is conceived as a linear, 2-storeyed, cast in-situ exposed concrete structure aligned parallel to the trees. A pedestrian promenade traverses under the trees and leads to the ceremonial, double height foyer which provides access to the classrooms, seminar halls, boardroom and bookshop on the ground floor. It also connects to the processional ramp leading to the first floor where a library, an exhibition space and a 250-seat auditorium are housed. The large glazed openings of the building enable even and deeper penetration of daylight, enhance the transparency of the building and extend the vistas across the site. They also provide a subtle contrast to the monolithic grey concrete.

The project has won the World Architecture Award in 2001 and the ar+d High Commendation, the same year.

Foto © HCPDPM
Foto © HCPDPM
Foto © HCPDPM
Foto © HCPDPM
© HCPDPM
Foto © HCPDPM
Foto © HCPDPM
Dibujo © HCPDPM
Arquitectos
HCPDPM
Año
2010
Estado del proyecto
Construido

Proyectos relacionados 

  • Moos
    playze
  • Reiters Reserve Premium Suiten
    BEHF Architects
  • Erweiterung und Instandsetzung Hallenbad Altstetten
    MIYO Visualisierung
  • Neubau von fünf Einfamilienhäusern
    Bäumlin+John AG
  • The Forge in der 105 Sumner Street in London
    Kiefer Klimatechnik GmbH

Magazine 

Otros proyectos de HCPDPM 

Newman Hall
Ahmedabad, India
Student Housing, Institute for Plasma Research
Gandhinagar, Ongoing, India
Arvind Mills Corporate Studio
Ahmedabad, India
Sabarmati Riverfront Development Project
Ahmedabad, Ongoing, India
Entrepreneurship Development Institute
Bhat, India