Vivienda Barceloneta I
Barcelona, España
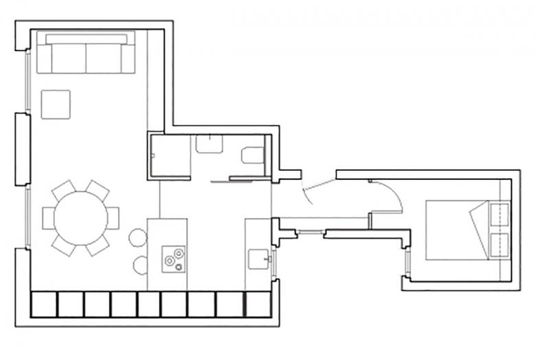
Reforma de un pequeño piso en La Barceloneta. La propuesta nace del reto de hacer habitable un espacio de 26 m2, en el que habitarán entre una y tres personas. Para ello, se coloca todo el mobiliario fijo en el perímetro dejando el máximo espacio liberado.
Se piensan los recorridos para que, en una vivienda tan pequeña, se puedan realizar actividades simultáneas sin molestarse unos a otros. La ducha y el inodoro se separan del lavabo.
El piso se vive de maneras distintas dependiendo de las personas que lo habitan en cada momento. Por eso, el mobiliario integrado debe ser lo más flexible posible y se debe explotar al máximo su capacidad de almacenaje. La cama, diseñada en varios niveles, alberga el almacén para bicis y otro para tablas de surf debajo suyo y en frente, una estantería pivota para dar mas o menos privacidad al dormitorio. En el salón, el sofá es también un cajón y según la disposición de los cojines, puede transformarse en una cama complementaria.
Los parámetros exteriores del barrio de La Barceloneta completan el ambiente interior del piso. El mueble de la cocina se tiñe de amarillo para dar mas sensación de entrada de luz natural. También se coloca en la ventana junto el sofá un espejo para que, desde cualquier ángulo del salón-cocina, se pueda contemplar el mar.
- Arquitectos
- sandy brunner Arquitectura
- Año
- 2005
- Estado del proyecto
- Construido
- Cliente
- private









