ARA Muri – Neubau GAK
Muri AG, Switzerland
Neubau GAK Filtrationsanlage für die ARA Muri
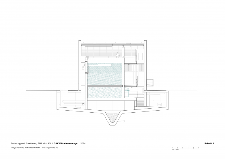
Im Rahmen des 2016 in Kraft getretenen Gewässerschutzgesetzes, das vorschreibt, dass bestehende Kläranlagen an belasteten Gewässern um eine zusätzliche Reinigungsstufe zur Entfernung von Spurenstoffen erweitert werden müssen, wurde in der ARA Muri eine Filtrationsanlage mit Granulataktivkohlenfilter (GAK) errichtet.
Die innovative Klärstufe "Elimination von Mikroverunreinigungen" mittels der GAK-Filtrationsanlage ist die erste Baumassnahme im Kanton Aargau, die dieser Strategie folgt.
Die GAK-Anlage umfasst vor allem vier Filterzellen, die aus Gründen der Nachhaltigkeit in das bestehende und stillgelegte Nachklärbecken integriert wurden.
Bei diesem Projekt arbeiteten die Architekten und Ingenieure eng zusammen, um die Vereinbarkeit von Gestaltung und technischem Nutzen der Anlage erfolgreich zu bewältigen.
- Arquitectos
- Mireya Heredero Architekten GmbH
- Año
- 2024
- Estado del proyecto
- En construcción
- Cliente
- Gemeinde Muri - Abteilung Bau und Planung
- Generalplaner
- CSD Ingenieure AG































