Carmel Place

335 East 27th Street, New York, USA
Foto © Iwan Baan

nARCHITECTS’ Carmel Place (formerly known as My Micro NY), with Monadnock Development, is the winning proposal in the adAPT NYC an initiative launched as part of former Mayor Bloomberg’s administration’s New Housing Marketplace Plan to accommodate the city’s growing small household population.  The building was granted several mayoral overrides to allow this prototype to be built, including a relaxation of the minimum unit size, and the maximum density, or number of units permitted in a building.  The now completed Carmel Place provides 55 loft-like rental apartments, ranging in area from 260-360sf net, and complemented by generous shared amenities, setting a new standard for micro-living. The project has been watched closely as a new housing prototype in NYC, and for its groundbreaking use of modular construction.

BUILDING DESIGN

nARCHITECTS designed the exterior and interior spaces of Carmel Place as a repeatable and systemic new paradigm for housing in NYC and other cities with similar housing challenges.  Conceived as a microcosm of the city skyline, the building’s exterior resembles four slender “mini towers”, connecting the concept of micro-living to the form and identity of the building.  By incorporating setbacks in the design of the stepping “micro-towers”, Carmel Place’s urban form could in principle be adapted to different sites, at a range of heights and floor area ratios, and at nearly any location in a block. The architects’ aim was to provide a new social framework for small households that emphasizes nested scales of community rather than individual residents.  The 11 foot wide “towers” reflect this goal by celebrating the beauty of small dimensions, while not highlighting individual micro units on the exterior.  The use of four shades of grey brick make connections to the project’s local context, while also placing Carmel Place within New York’s long legacy of brick used in housing.  The building’s 8’ tall windows, placed in apartments, corridors and stairs, recall proportions used in New York’s 19th century brownstones, one of the architect’s references for the building’s interior proportions.

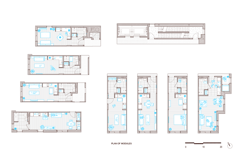
UNIT ALLOCATION

40% (22) of the 55 rental units at Carmel Place are dedicated for affordable housing, of which 8 are Section 8 – reserved for formerly homeless US veterans (these apartments will be provided with complementary integrated furniture).  The completion of model units earlier in 2016 generated a wide interest in Carmel Place, drawing in more than 60,000 applications for the 14 remaining affordable units.  The rest of the units (33) are market rate; half of which include furniture and services, an upgrade made possible for any of the units.

UNIT INTERIORS

nARCHITECTS’ design goals for the unit interiors was to achieve a sense of spaciousness, comfort and efficiency, even while shrinking their footprint.  To achieve this goal, the architect-developer team increased the size of everything except the floor area: 9’-8” ceilings result in a volume that is close to or exceeds that of a regulation 400sf apartment, which coupled with the abundant daylight made possible by 8’ tall sliding windows and Juliet balconies, maximize the perceived volume of space.  Extra storage space is located in the added height above the bathrooms.  nARCHITECTS also worked with Resource Furniture to source flexible built-in furnishings that integrate storage, couch and bed into the layout of almost half of the units (including those dedicated to veteran’s housing). Additional furnishings were provided by Stage 3 Properties through Ollie, an all-inclusive living solution that provides residents with furnishings and amenities.  The building’s five basic micro-unit types vary in size and configuration, thereby broadening the spectrum of choice for small family households.

AMENITIES

Carmel Place’s communal amenities are accessible to all residents.  Designed for multiple functions, they are located in the building’s best places, enhancing the tenants’ active connection to the community.  A sun-filled and over-sized lobby connects Mt Carmel Place’s sidewalk on the west to an exterior porch for residents’ use on the east.  Conceived of as an interior street, this flexible space could in principle be used to host a dinner party for all the residents of the building.  In addition to containing lounge spaces with built-in seating, the lobby opens to a large street-level and fully glazed gym that fronts the pedestrian 27th street and adjacent park.  In the cellar residents have access to a den, storage, bike storage and laundry, while at the 8th floor, a community room with a pantry leads onto a public roof terrace with sweeping city views.  Spaces typical of a home are thereby dispersed throughout the building, encouraging residents to interact with their neighbors throughout their daily routine.

MODULAR CONSTRUCTION

In addition to being the first micro-unit apartment building in New York City, Carmel Place is – at the time of writing – the tallest modular building in Manhattan, and one of the first multi-unit Manhattan buildings using modular construction. Construction of Carmel Place consisted of fabrication, transportation and stacking of 65 individual self-supporting steel framed modules; 55 of which serve as residential micro-units, while the remaining 10 serve as the building’s core.  The modules were pre-fabricated locally in the Brooklyn Navy Yard at the Capsys factory, while the foundation and ground floor were built on site.  The completed modules were then transported over the Brooklyn Bridge and stacked on site ready for installation of appliances and interior finishes. Dividing the construction process reduced on-site construction noise and neighborhood disruption, while the controlled environment of the factory allowed the team to control quality and maintain critical interior dimensions.

Foto © Iwan Baan
Foto © Iwan Baan
Foto © Pablo Enriquez
Foto © Pablo Enriquez
Foto © Pablo Enriquez
Foto © Pablo Enriquez
Foto © Pablo Enriquez
Arquitectos
nARCHITECTS
Año
2016
Estado del proyecto
Construido

Proyectos relacionados 

  • Moos
    playze
  • Reiters Reserve Premium Suiten
    BEHF Architects
  • Erweiterung und Instandsetzung Hallenbad Altstetten
    MIYO Visualisierung
  • Neubau von fünf Einfamilienhäusern
    Bäumlin+John AG
  • The Forge in der 105 Sumner Street in London
    Kiefer Klimatechnik GmbH

Magazine 

Otros proyectos de nARCHITECTS 

Wyckoff House Museum
Brooklyn, NY, USA
Forest Pavilion (Y Lu Duqai A Luma)
Guangfu, Hualien, China
Double-Ex House
For Hometta, USA
Endless Table (Kiesler Exhibition)
The Drawing Center, New York, USA
Ply Loft
New York, USA