Casa Grande Hotel
Grañón, España
«No hay nada más gratificante y bello que deconstruir un edificio olvidado para rescatar toda la historia que subyace en él».
–Francesc Rifé
Hay lugares de los que escapas y lugares a los que escapas. Cansados del ritmo acelerado de su localidad natal —un pueblo turístico de la Costa Brava— Mònica y Raül decidieron buscar un lugar tranquilo en La Rioja para simplificar su estilo de vida. La familia encontró en Grañón, un pequeño pueblo situado en la ruta del Camino de Santiago, una antigua casa solariega del siglo XVIII con posibilidades para realizar un proyecto hotelero relajado, de tan solo 11 habitaciones. Casa Grande Hotel es el resultado y la afirmación de esta idea convertida por el estudio en un escenario que procura sentirse como en casa.
Un diseño en el que un nuevo y sobrio juego de materiales coexiste con la historia del lugar sin pretensiones de transformarlo todo. El denominador común más importante del proyecto ha sido la conservación de las paredes de sillería sobre las que se ha aplicado una pátina monocromática gris clara para unificar el tono. Esta técnica también pretende dotar de cierta luminosidad a las estancias, donde el grueso de los muros muchas veces no facilita la entrada de luz natural. Por otro lado, y contrastando con la claridad de la piedra y los suelos en roble natural, está la madera de chopo negra que recorre el espacio, integrando la iluminación y escondiendo aparatos técnicos tales como los altavoces. Este color también se vincula emocionalmente con pilares y vigas rehabilitadas de un tono oscuro.
Con dos accesos, el que parecía destinado a ser la recepción principal del hotel se convierte finalmente en una entrada tan solo para los huéspedes, mientras que una gran puerta pivotante de hierro pavonado que conecta una plaza contigua con la terraza trasera, se erige como la introducción pública al edificio. En el interior, el lobby está protagonizado por un gran mueble metálico de bienvenida, y a ambos lados de éste se sitúan las salas de lectura y televisión que funcionan como espacios de relax y recreo. Seguidamente, el restaurante interactúa con una pequeña bodega y una barra de apoyo junto a la cocina. La propuesta gastronómica está comprometida con el discurso relajado del lugar y su chef ha basado la carta en platos tradicionales de La Rioja. También se proporciona servicio al cliente en el exterior en una terraza que funciona simbólicamente como pulmón.
El mal estado de todas las aberturas de la fachada ha llevado a emplear estructuras en hierro pavonado de 10mm para mantener su cuadratura, y posteriormente se les han incorporado ventanas de aluminio en un acabado similar. Con el mismo tipo de chapa se han diseñado porticones pivotantes que no sólo sirven para contener la luz sino que forman parte de la estética plástica de las habitaciones. Estos elementos quedan siempre plegados paralelamente a la fachada y han acabado convirtiéndose en gestos decorativos presentes a lo largo de todo el proyecto, y tanto en el interior como en el exterior.
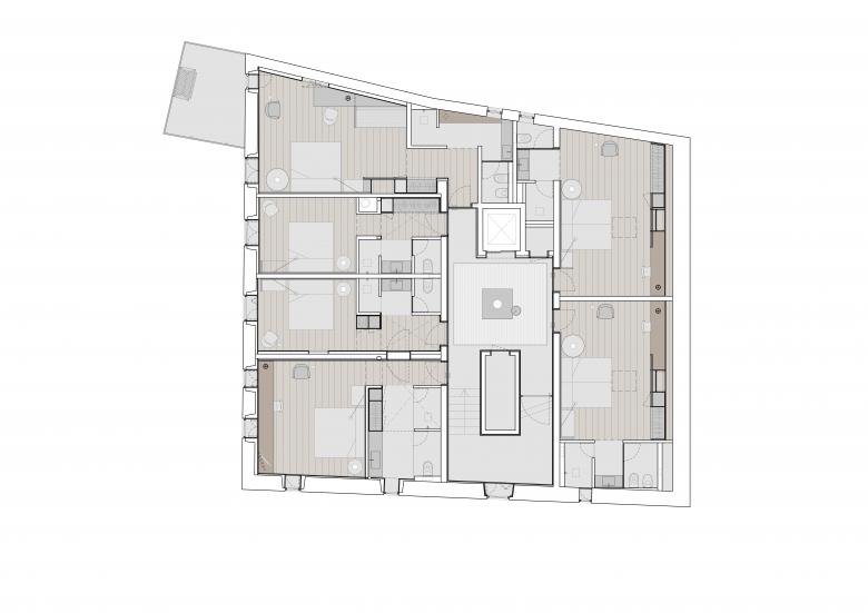
El edificio cuenta con dos plantas más —un primer piso y un bajo cubierta—. La primera planta se divide en 5 habitaciones con una estética similar pero con particularidades y distribución distinta. Algunas de ellas mantienen las paredes de sillería mientras que en otras se ha dejado el ladrillo visto o el propio hormigón utilizado para rehabilitar el edificio. Para evitar atmósferas cargadas se ha empleado el mismo tratamiento monocromático que unifica las diferentes texturas que han ido apareciendo. La segunda planta tiene 6 habitaciones caracterizadas por una mayor altura (por haber recuperado el espacio residual bajo cubierta). Todas ellas han sido diseñadas bajo el concepto de suite con una cama de grandes dimensiones y algunas con un sofá que hace las veces de cama anexa. Siguiendo el mismo tratamiento que el resto del proyecto, el mobiliario a medida se ha planteado en madera de chopo negra, utilizando pequeños listones para marcar las intenciones de cada habitación, bien sea el remate del cabezal o las propias aberturas donde se esconde el minibar y la caja fuerte. El armario se sitúa siempre en un segundo plano, pero quedando semiabierto para permitir que el huésped tenga a mano sus prendas. Al igual que los techos de la planta baja, el de los distribuidores de los diferentes niveles y el bajo escalera está revestido con el mismo material de madera teñida negra para perder la sensación de altura.
La fachada lateral, quizá la más imponente del proyecto, parte de una distribución original caótica de las ventanas existentes (y alguna nueva) que busca ordenarlas bajo una piel superpuesta de hierro pavonado. Se trata del mismo paramento que se prolonga como puerta pivotante para dar acceso a la terraza del hotel. Este elemento tiene un doble sentido, por un lado fortalece el discurso estético de la chapa que se ha utilizado para configurar ventanas y balcones, pero a la vez esconde diferentes aberturas laterales que alojan maquinaria, contadores de electricidad y agua, etc. En este plano, se han colocado las lámparas Campanula, diseñadas por el arquitecto Peter Zumthor para Viabizzuno, con las que se buscaba comunicar desde un primer momento la racionalidad y el mimo con el que se ha tratado el proyecto. En el interior, hay una iluminación general e integrada de downlights, una indirecta y lineal que pretende remarcar las superficies rehabilitadas, y un tercer tipo de iluminación decorativa que define el estado de ánimo íntimo del hotel.
- Arquitecto de interiores
- Francesc Rifé Studio
- Año
- 2020
- Estado del proyecto
- Construido
- Cliente
- Mònica Bertó y Raül Geremias
- Equipo
- Octavio Pérez Monfort
- Builder
- Proviser























