CASA SIL

Zürichsee, Switzerland
Foto © Bruno Helbling

500 m²

Foto © Bruno Helbling
Foto © Bruno Helbling
Foto © Bruno Helbling
Foto © Bruno Helbling
Foto © Bruno Helbling
Foto © Bruno Helbling
Foto © Bruno Helbling
Foto © Bruno Helbling
Foto © Bruno Helbling
Situationsplan
Dibujo © Daluz Gonzalez Architekten
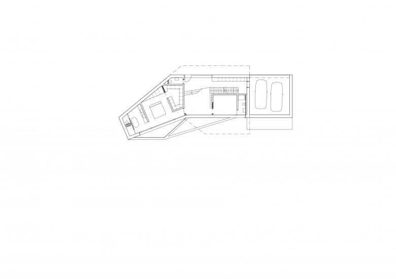
Dachaufsicht
Dibujo © Daluz Gonzalez Architekten
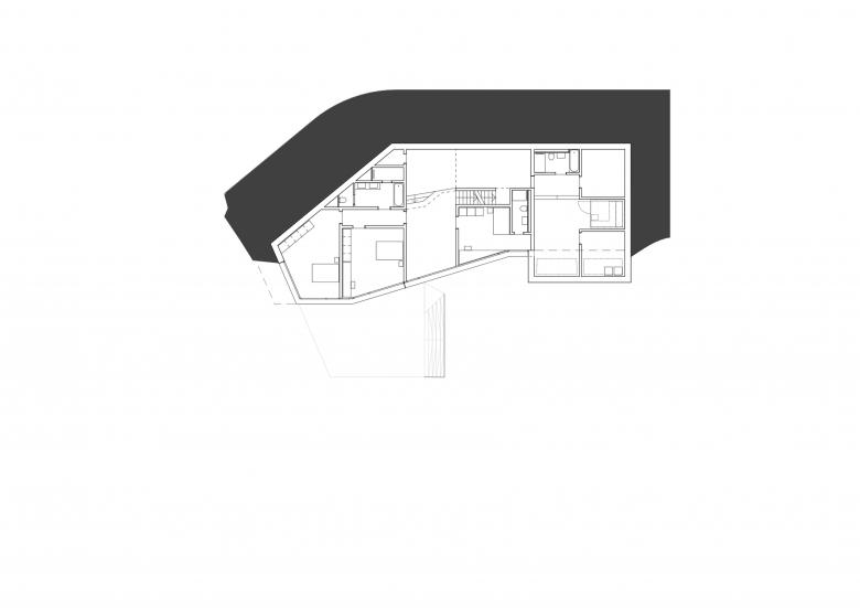
Obergeschoss
Dibujo © Daluz Gonzalez Architekten
Erdgeschoss
Dibujo © Daluz Gonzalez Architekten
Untergeschoss 2
Dibujo © Daluz Gonzalez Architekten
Untergeschoss 1
Dibujo © Daluz Gonzalez Architekten
Arquitectos
Daluz Gonzalez Architekten
Año
2020
Estado del proyecto
Construido
Innenarchitektur
Marco Di Paolo
Landschaftsarchitekt
Cadrage

Proyectos relacionados 

  • Moos
    playze
  • Reiters Reserve Premium Suiten
    BEHF Architects
  • Erweiterung und Instandsetzung Hallenbad Altstetten
    MIYO Visualisierung
  • Neubau von fünf Einfamilienhäusern
    Bäumlin+John AG
  • The Forge in der 105 Sumner Street in London
    Kiefer Klimatechnik GmbH

Magazine 

Otros proyectos de Daluz Gonzalez Architekten 

CASAS CUBO Y
Küsnacht, Switzerland