Chelsea Townhouse
New York, USA
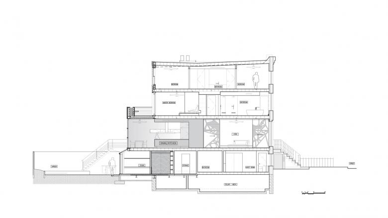
The existing 3,400 SF [316 m2] brownstone townhouse is a landmark, located in Chelsea, NY. It will be gut-renovated and a 550 SF [52 m2] garden extension will be added with two floors and a roof terrace. The client, a fashion designer, is interested in a ‘textured’ and layered approach.
The new rear extension is conceived as a light airy space which creates a filter to the garden space beyond, adding more light and better views. The new garden façade is a 3D folded steel and glass structure with reclaimed tropical palisander infill. It extends the library on the garden level, the living room on the parlor floor and creates a terrace for the master bedroom area above.
The interior of the townhouse is gut-renovated; the top floor is raised, the garden floor is lowered and a completely new wood and glass staircase with a skylight is inserted, lighting the stair space all the way down. Large sets of sliding doors at the living room/entry and bedroom/bathroom areas are creating flexible use of space. These doors are 3D CNC-milled with wood and glass patterns.
CREDITS
Year: Completed 2011
Location: Chelsea, NYC
Client: Private
Project Type: 3,400 sq ft Townhouse with 550 sq ft Extension and Garden
Size: 3400 sq ft
Design Team: Principal in charge: Winka Dubbeldam, Assoc. AIA | Project Leader: Thomas Barry | Archi-Tectonics Team: David Barr, Isik Ulkun, Bettina Toth, Simone Gerster
Consultants: Mechanical Engineering: Stanislav Slutsky Engineers | Structural Engineers: Anastos Engineering Associates
Photography: Richard Powers | Archi-Tectonics
Architect of Record: Randall Collins, Architect
- Architectural Designers
- Archi-Tectonics NYC LLC
- Año
- 2011
- Estado del proyecto
- Construido











