Collège des Rives
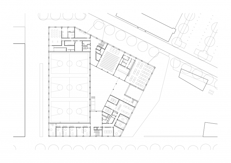
Première réalisation concrète du nouveau quartier Gare-Lac, le collège occupe une position clé. A l’ouverture de la rue de l’Arsenal et de l’avenue de l’Hippodrome, un parvis dégage la façade d’entrée de l’institution scolaire en tête des équipements publics sur l’avenue, face au lac.
Le collège marie la structure urbaine de la rue de l’Arsenal avec la nouvelle façade des Rives qu’il préfigure sur l’avenue de l’Hippodrome, selon le nouveau PDL.
Une ruelle dessert la Caserne et le Collège séparant clairement les deux programmes et offrant une perméabilité au site.
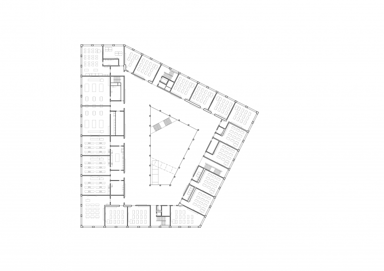
L’expression architecturale sobre renvoie tant au passé industriel du quartier qu’à son avenir urbain habité. L’échelle des façades et leur composition préfigurent celles des futurs bâtiments d’habitation voisins. La brique et les grandes baies rappellent les manufactures et dialoguent avec les halles CFF. De connotation modeste, la terre cuite évoque le sol alluvial; c’est un matériau du cru (au XIXe s. briqueteries Barraud à Yverdon et Chavornay).
Les échanges sont au coeur de l’adolescence. Dans l’apprentissage de la vie, cette période foisonne de relations sociales. A chaque pause, même courte, tous se retrouvent et se voient autour de la cour du Collège qui en est le coeur.
Les programmes scolaires gravitent autour de cette cour, facilitant les changements de classes rapides et l’exploitation.
L’extension de la Caserne de Pompiers fait face au bâtiment existant. La rue du Séchoir est encadrée par les sorties des garages, consacrant l’usage de cette rue à l’activité des services de secours et facilitant les sorties d’urgence.
Les garages disposés en batterie s’ouvrent à l’ouest et les ateliers à l’est tandis que l’administration et les quartiers de vie sont à l’étage, sur les ateliers.
Programme scolaire : collège secondaire de 35 salles de classes, 15 salles spéciales, salle de gymnastique triple, réfectoire et salle polyvalente, administration, services parascolaires et conciergerie.
Programme sécuritaire : extension de la caserne de pompiers, garages, ateliers et locaux de vie pour le SDIS et la police.
- Arquitectos
- PONT12 architectes sa
- Año
- 2019
- Estado del proyecto
- Construido
- Cliente
- Commune d'Yverdon-les-Bains
- Ingénieur civil :
- DIC SAingénieurs
- Ingénieur CV
- Jacob Forrer SA
- Ingénieur S
- H.Schumacher ingénieurs conseils SA
- Ingénieur E
- Thorsen Sàrl
- Ingénieur géotechnicien
- De Cerenville, Géotechnique SA
- Architecte paysagiste
- Pascal Heyraud














