Ecole des Perraires
Collombey-Muraz, Switzerland
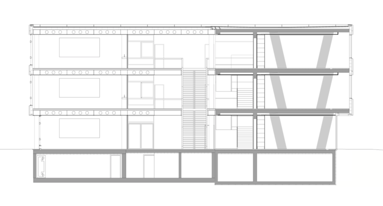
Le système CROCS a permis de développer sous l’égide de plusieurs concepteurs, dont Bernard Vouga et Gilbert Charrot, un principe de construction modulaire adapté aux bâtiments scolaires. Parmi les édifices pionniers, l’école des Perraires de Collombey-Muraz en est le dernier exemple conservé dans son état presque original. Le canton du Valais l’a remarqué en initiant une démarche de protection de l’ouvrage. Les caractéristiques principales du système CROCS sont une trame constructive de base de 2.40 m., un espace structurel de 60 centimètres (double axe) qui se marque en façade et apporte une solution au problème de l’angle du mur-rideau ainsi qu’une structure porteuse ponctuelle et métallique.
Le projet de l’extension et la transformation de l’école des Perraires prend le parti de réécrire le projet CROCS par la sélection des éléments qui en font la caractéristique, la « signature » et la richesse. Il s’agit ici de conserver le caractère « villa Savoye » de l’origine, à savoir un pilotis très légèrement détaché de la peau du rez-de-chaussée et des étages flottants et « lisses » au dessus. De plus le principe des quatre façades « identiques » est poursuivi tout en différenciant légèrement le dessin de la nouvelle partie, la matérialité restant en aluminium éloxé.
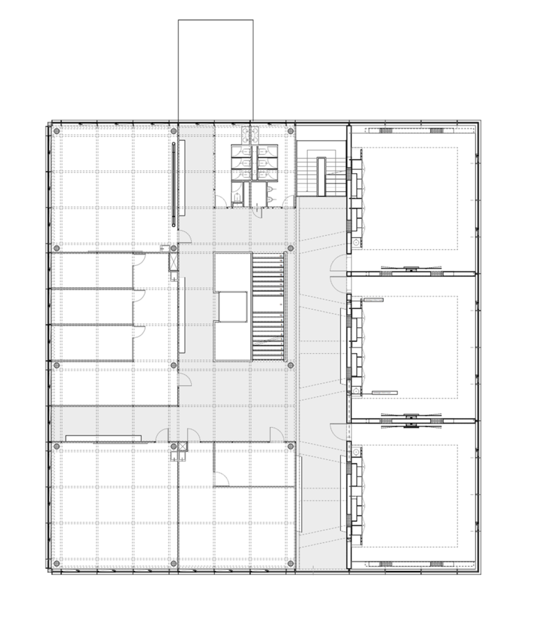
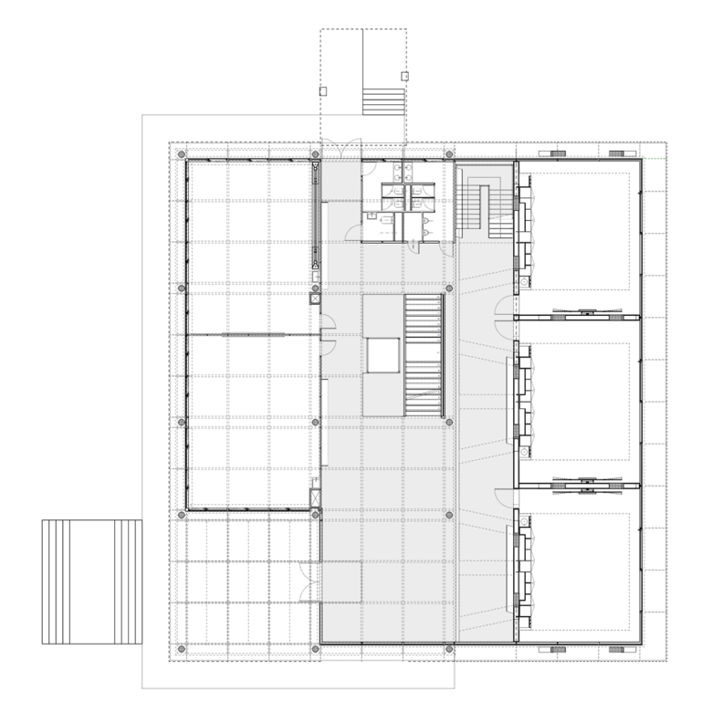
Dans l’extension, un nouvel escalier est positionné dans une situation de « service », au nord, avec une transparence apportant de la lumière aux distributions. Les nouvelles classes, au nombre de trois par étage, sont placées face au grand paysage alpin.
D’un point de vue structurel, l’extension participe à la stabilisation de l’ensemble, par la présence d’éléments en béton en forme de « V » qui s’installent dans l’espace et le caractérise, tout comme la modulation métallique le faisait pour la partie existante. Les remplissages intérieurs non porteurs sont bardés d’aluminium en réponse aux panneaux existants.
Le projet par sa compréhension et sa réinterprétation du type CROCS amène à une complète préfabrication de l’enveloppe (dix-sept types de pièces différentes) et donc un grand gain de temps de montage et une optimisation des coûts. La configuration du plan, grâce à sa « double circulation » autour de l’escalier central, permet d’envisager une séparation claire du chantier en deux phases.
- Arquitectos
- meier + associés architectes
- Año
- 2017
- Estado del proyecto
- Construido
- Cliente
- Commune de Collombey-Muraz
Proyectos relacionados
Magazine
-
La Construcción de la semana
The Three-Body Problem: Trapped in a Wave Sandwich
Eduard Kögel, Scenic Architecture Office | 13.04.2026 -
-















