Einfamilienhaus Peter
Der Spielraum für die Volumetrie des Gebäudes wird durch die knapp bemessene längliche Parzelle begrenzt. Die baurechtlichen Rahmenbedingungen bestimmen die Setzung des Volumens massgeblich.
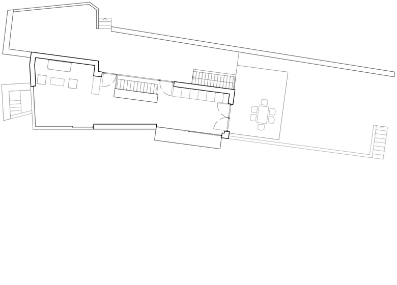
Die beeindruckende Aussicht wird durch grosse Fenster im Wohngeschoss gerahmt und inszeniert. Die beiden Hauptwohnräume werden gezielt ausgerichtet. Das Wohnzimmer orientiert sich über ein grosses Eckfenster nach Süden über den See nach Italien, die Küche mit Essbereich erlaubt einen Ausblick nach Nordosten, über das Dorf und das Maggia-Delta. Die privaten Räume im unteren Geschoss orientieren sich frontal auf den See. Die Fenster sind kleiner und damit privater als in den darüber liegenden Wohnräumen. Das Haus ist in die Topographie eingebettet und sucht den Bezug zu den Stützmauern des Gartens. Wie ein geschliffener Stein fügt sich das Haus dadurch im steil abfallenden Gelände ein. Dieser Effekt wird durch eine leichte Auskragung des Gebäudekörpers über dem Sockelgeschoss akzentuiert.
- Arquitectos
- SLIK Architekten
- Año
- 2009
- Estado del proyecto
- Construido
- Cliente
- privat












