Erweiterung Aula Untere Au

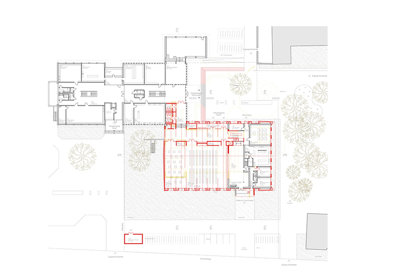
Das Projekt steht als Pavillonbau auf der Grünfläche der Oberschule und orientiert sich gegen die grosszügige arealinterne Freifläche.

Die Ziselierung der Gebäudehülle, ähnlich einem Gürteltierpanzer, bricht optisch das Volumen und unterscheidet sich durch den organischen Charakter von den arealdefinierenden Bauten.

Die Sanierung der Aula bietet die Chance mit gezielten Eingriffen unbehandelte Umgebungsbereiche zu klären.

Der Hauptzugang zur Oberstufe wird durch die Bereinigung der Platzgeometrie stärker ins Umgebungskonzept integriert und bildet mit den Betonstufen ein Pendant zum gegenüberliegenden Zugang der Primarschule.

Das Projekt vereinigt die geforderten Nutzungen unter einer Hülle und schafft damit ein neues klares Volumen und Identität. Die Strukturierung und Gestaltung der Fassade leitet sich aus den unterschiedlichen Anforderungen der Aula ab. Der gestaffelte Längsschnitt wird hergeleitet aus der optimalen Belichtung und eines raumakustisch guten Volumens. Das Trägerquerprofil bildet die Statik und integriert die Leitungsführung der Haustechnik.

Die Fassade zeichnet somit ein übersetztes Bild der Nutzung im Sinn von Louis Sullivan (form follows function).

Die vorhandene Struktur im Bereich der heutigen Aula ermöglicht keine befriedigende räumliche Erweiterungsmöglichkeiten. Zudem ist die bestehende Hülle inklusive den Fenstern in weiten Teilen sanierungsbedürftig und entspricht nicht den heutigen Anforderungen. Im Sinn eines nachhaltigen und klärenden Eingriffs, werden die statischen Strukturen im Bereich der heutigen Aula entfernt, die Vertiefung aufgefüllt und der Boden wo nötig ergänzt

Die bestehende Bausubstanz wird soweit zurückgebaut, dass das Raumprogramm optimal organisiert werden kann. Dabei entsteht ein kompaktes Volumen mit reduziertem „footprint“ das auch mit der Bodenfläche ressourcenschonend umgeht.

Arquitectos
apart architektur
Estado del proyecto
En construcción

Proyectos relacionados 

  • Moos
    playze
  • Reiters Reserve Premium Suiten
    BEHF Architects
  • Erweiterung und Instandsetzung Hallenbad Altstetten
    MIYO Visualisierung
  • Neubau von fünf Einfamilienhäusern
    Bäumlin+John AG
  • The Forge in der 105 Sumner Street in London
    Kiefer Klimatechnik GmbH

Magazine 

Otros proyectos de apart architektur 

Neubau Garderobengebäude Mettmoos
Biel, Switzerland
Umbau Ferrari
Bern, Switzerland
Neubau 5 Eigentumswohnungen
Lyss, Switzerland
Umbau Eigentumswohnung
Biel, Switzerland
Sanierung Wohnungen "Bözingenstrasse"
Biel, Switzerland