ETH Büro- und Seminargebäude HCP
Zürich, Switzerland
Abenteuer in die Horizontale —
Eigentlich sollte es nur ein Container-Provisorium werden. Manchmal aber schafft Widerspruch die Basis für ein wirklich überzeugendes Werk. Auch aus ökonomischer Sicht.
So zumindest dachten sich Züst Gübeli Gambetti angesichts des Wettbewerbsprogramms, das die ETH für dringend benötigte Räumlichkeiten auslobte. Ihnen schien die geforderte Interimslösung keineswegs nachhaltig. Zugleich war es verlockend, am Hönggerberg – dem Olymp der Architekten – eine dezidierte Antwort auf das Morgen zu liefern. Mit ihrem Siegerprojekt ist ein dreimal so grosser und solider Neubau entstanden – notabene das kostengünstigste Gebäude, das sich die Hochschule auf vergleichbarer Fläche je geleistet hat.
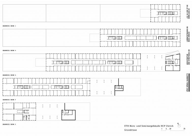
Durch die langgestreckte, gestaffelte Form entfaltet der lange Stapel eine ganz besondere Präsenz. Mit Respekt vor seinem grossen Bruder, dem Chemiegebäude HCI, duckt er sich, ohne sich unterzuordnen und markiert mit ihm den Auftakt zur Science City. Bei seiner horizontalen Expansion macht sich der 200-Meter-Bau die Topografie zu Nutze. Willkommener Effekt ist eine spezielle Schnittlösung, die nur einen einzigen Lift im Gebäude bedingt. Ebenso entstehen quasi umsonst vielseitig nutzbare überdachte Bereiche und Terrassen. Im Zusammenspiel mit dem Chemie-Riesen formieren sie sich zu hofartigen Aussenräumen und eröffnen Durchblicke in die Landschaft.
Sowieso ist die austarierte Figur eine Symbiose wirtschaftlichen und architektonischen Kalküls. Die gleiche Behandlung aller Fassaden resultiert aus dem Wechselspiel offener und geschlossener Elemente, was den skulpturalen Eindruck noch betont. Innen bewährt sich die Horizontale, weil sie die Kommunikation begünstigt und flächeneffiziente Grundrisse schafft. Die serielle Anordnung der Fassadenmodule trägt dabei wesentlich zur Flexibilität bei. Effizient ist auch der Anschluss an das Anergie-Netz des Campus sowie ein ökonomisch wie ökologisch vernünftiges Low-Tech-Konzept, das für eine C02-freie Energieregie und leichte Wartung sorgt.
- Arquitectos
- Züst Gübeli Gambetti
- Año
- 2015
- Estado del proyecto
- Construido
- Cliente
- Immobilien ETHZF AG der ETH Zürich Foundation
- Equipo
- Baumanagement ETH Immobilien, Totalunternehmer HRS Real Estate AG, Statik Ribi und Blum AG, Bauphysik Kopitsis Bauhpysik AG, Elektro Hefti Hess Martignoni Aarau AG, HLKS Pfiffner AG, Landschaft Vogt Landschaftsarchitekten AG














