ewz Unterwerk Oerlikon
Ein steigender Verbrauch, aber auch dezentrale Einspeisungen und in der Folge zunehmende Verbrauchsschwankungen – das sind einige der aktuellen Herausforderungen an die Verteilung von elektrischer Energie. Die Betreiber müssen sich diesen veränderten Bedingungen stellen und investieren in den Ausbau und die Leistungsfähigkeit ihrer elektrischen Verteilnetze. Selbstbewusst, und mit dem Wunsch die smarte Stromtechnologie für die Öffentlichkeit erlebbar zu machen, setzen die Elektrizitätswerke Zürich (ewz) bei dem Neubau des ewz Unterwerkes in Zürich Oerlikon auf ein unkonventionelles Konzept: Der Bauherr möchte die kostbare Investition nicht unter der Erde verstecken, sondern der Öffentlichkeit – trotz aller nötiger Sicherheitsmaßnahmen – zugänglich machen.
Unterirdisch und mittendrin
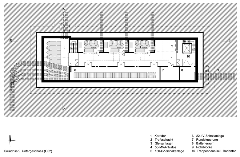
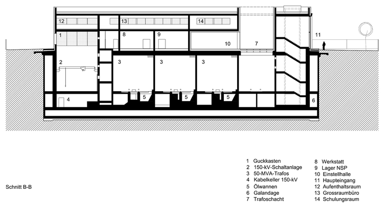
Ein Umspannwerk dient der Einspeisung bzw. der Transformation von elektrischer Energie verschiedener Spannungsebenen. Die bestehende Freiluftschaltanlage an der Binzmühlestrasse konnte den Anforderungen des 21. Jahrhunderts nicht mehr gerecht werden. 1949 zwischen Fabrik- und Maschinenhallen errichtet, befindet sich das Areal heute inmitten eines der größten innerstädtischen Stadtumbaugebiete der Schweiz. So wird das neue Unterwerk inklusive Transformatoren, Schaltanlagen und der dazugehörigen Infrastruktur kompakt und flächensparend unter die Erde verlegt. Mit drei Untergeschossen reicht das Gebäude an seiner tiefsten Stelle 13 Meter unter den Grundwasserspiegel. Um Standortsynergien zu nutzen, wird das Unterwerk um einen zweigeschossigen Netzstützpunkt ergänzt; dieser dient als Werkhof für Montagearbeiten am Netz des ewz.
Guck' mal! – Einblicke in die elektrische Unterwelt
Das Büro illiz architektur aus Zürich und Wien entwickelte in der Wettbewerbsphase für die Bauaufgabe die Idee des „Guckkastens“ – ein Gebäude also, dass ähnlich den gleichnamigen Vorbildern des 18. Jahrhunderts, Gehäuse ist für fremde und unbekannte Welten, die der Besucher in seinem Inneren erspähen kann. Der 12 Meter hohe unterirdische Schaltanlagenraum erhebt sich als erleuchteter Kasten um einige Meter über die Oberfläche, so dass die Passanten in der Tiefe seines Inneren und im „Bauch“ des Gebäudes dessen Herzstück, die 150kV Hochspannungsschaltanlage, erblicken können.
Architektur vereint mit Technik und Kunst
Ein Kunst und Bau-Projekt des Schweizer Künstlers Yves Netzhammer inszeniert diesen Raum. Er verkleidete die begrenzenden Wände des Guckkastens mit einer multimedialen Spiegelinstallation („Der gefangene Floh“), in der Betrachter und elektrotechnische Anlagen in einer scheinbar ins unendliche gespiegelten Szene verschmelzen.
Zwischen Haupteingang und Guckkasten spannt sich ein unterirdischer Ausstellungsweg entlang von Transformatoren und Rohrblöcken auf. Einmal hinab getaucht, wandern die Besucher entlang des diffus grün leuchtenden, 8 Meter hohen Transformatorgangs, dessen massive perforierten Betonwände Einblicke in Trafozellen und Schalträume schaffen – immer begleitet von einem dezentem Summen.
Diese „Gucklöcher“ zur Technikwelt streuen sich über die Wandoberflächen wie ein Schwarm, der den Besucher auf seinem Weg durch das Unterwerk begleitet. Vom lichtdurchfluteten Haupteingang hinunter, durch das Treppenhaus und über die Trafoempore hinweg eröffnen sich immer neue Blickwinkel in die verschiedenen Räume der elektrotechnischen Anlagen.
Die Zugänge zu diesen Räumen verlangten zu Sicherheitszwecken nach einer eindeutigen und durch ewz festgelegten Farbgestaltung. Als Hintergrund für die Signalfarben in rot und orange, dient ein Grünton, der als Lasur sämtliche Sichtbetonoberflächen des Unterwerks überhaucht und den Innenraum in eine entrückte fast unwirkliche Atmosphäre taucht.
ewz Werkzeugkasten im Rhythmus der Stadt
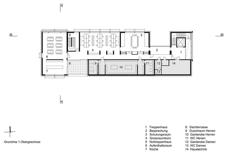
Das dem Unterwerk aufgesetzte zweigeschossige Werkhofgebäude dient den Monteuren des ewz als Stützpunkt für ihre Montage- und Servicearbeiten am elektrischen Verteilnetz in der Stadt. Während der Nacht erscheint der Netzstützpunkt als geschlossener, dunkler Monolith. Zu Beginn des Arbeitstages jedoch öffnet sich das Gebäude wie ein gewaltiger Werkzeugkasten. Große Teile der schiefergrauen Zinkfassade falten aus der Gebäudehülle heraus und erweitern den Arbeitsbereich des Stützpunktes in das umgebende Gelände.
Die horizontal faltenden Elemente bilden im Erdgeschoss grossflächige Tore zur Fahrzeugeinstellhalle. Im Obergeschoss dienen sie als Sonnenschutzläden für die Büroräume des Netzstützpunkts. Mit fliessenden Bewegungen wandelt sich der Eindruck des Gebäudes im Rhythmus der Tagesabläufe und macht die Arbeitsprozesse in und um den Stützpunkt für die Stadt sichtbar. Über Tore, Fenster und geschlossene Fassadenflächen hinweg läuft ein durchgehendes, irisierendes Lochmuster, welches die gesamte Gebäudehülle bestimmt: Die perforierten, patinierten Zinkblechkassetten überziehen selbst lüftungstechnische Einbauten und Schutzeinrichtungen, welche aus dem Unterwerk an die Oberfläche dringen. Die hinter der Hülle verborgene Funktion wird erst erkennbar, wenn sich der Netzstützpunkt zu Beginn des Tages öffnet.
Nur die grossen Verglasungen von Haupteingang und Guckkasten durchbrechen die dunkle Hülle des Gebäudes und zeichnen sich durch massive grün eingefärbte Betonrahmen ab. Der Eingang als Anfang, und der Guckkasten als Ziel des unterirdischen Ausstellungsweges bilden auch an der Oberfläche zwei markante Gegenstücke, die aus dem zurückhaltendem Gebäudevolumen heraustreten.
Herausforderungen an die Architektur
Das komplexe Planungsteam aus Ingenieuren und Architekten, Starkstromexperten, Haustechnikern, Grafikern und einem Künstler koordinierte die Prozesse in und um das Gebäude, um den Auflagen an Sicherheit sowie den allfälligen Zutrittskonzepten gerecht zu werden. Dabei war ein Spagat zu bewältigen zwischen der Erwartung eines uneingeschränkt dem Zweck dienenden Infrastrukturbaus und den räumlichen, atmosphärischen und künstlerischen Zielen der Architektur. Als Ergebnis dieser engen, produktiven Zusammenarbeit gestaltete das Team auch Komponenten, die unter „normalen“ Umständen kaum zur Gestaltungsaufgabe geworden wären: Technische Ausstattungen wie Kabelrohrblöcke, Kran- und Schienenanlagen sowie die elektrotechnische Gebäudeausrüstung fanden Eingang in das Gestaltungskonzept, und so zu einer formale Einheit mit der Architektur.
- Arquitectos
- illiz architektur
- Año
- 2015
- Estado del proyecto
- Construido
- Cliente
- ewz Zürich
- Equipo
- Petra Meng, Sabrina Mehlan, Stefanie Wögrath, Andrea Staudinger, Iris Euler
- Generalplaner
- Pöyry Schweiz AG















