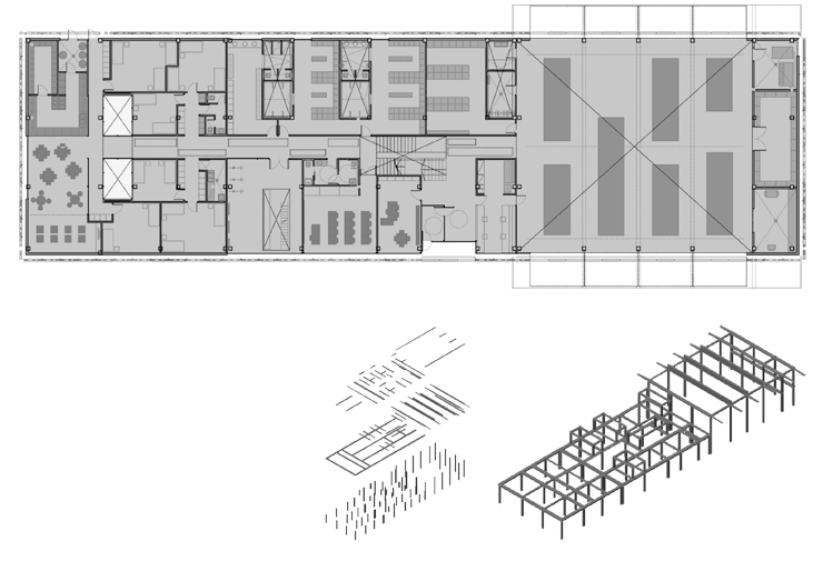
Parque de bomberos
La fachada, una doble envolvente con la cara exterior a base de planeles de fibra de vidrio de diferentes tonalidades, da la imagen características del edificio. La torre de comunicaciones resulta un rasgo distintivo.
La fibra de vidrio, propuesta para la estructura y pavimento del helisuperfície, la estructura de la torre de comunicaciones y la fachada ventilada, ofrece unas calidades que lo hacen aconsejable, como son: elevadas prestaciones mecánicas, peso reducido, fácil transformación, mantenimiento cero, resistencia a la corrosión, protección als UVA, aislamiento térmico y eléctrico, permeabilidad al paso de la luz, transparencia electromagnética, posibilidad plástica de pigmentación, etc.
El proyecto saca provecho del programa y materiales para conseguir la identidad que caracteriza su entorno cercano.
- Arquitectos
- Mamen Domingo | Ernest Ferré Arquitectes
- Año
- 2010
- Estado del proyecto
- En construcción












