Forstamt Jena-Holzland

Gustav-Herrmann-Straße 27, Stadtroda, Alemania
Forstamt Jena-Holzland / Ansicht Eingangsbereich
Foto © Thomas Eicken Fotografie, Fischbach bei Dahn

Der Neubau „Forstamt Jena-Holzland“ in Stadtroda (Ostthüringen) beherbergt eines von 24 Thüringer Forstämtern sowie die Forstinspektion Ost. Das naturnahe Anwesen ist geprägt von einem alten Arboretum und weitläufigen Streuobstwiesen mit Bienenstöcken. Das Grundstück bot somit ideale Voraussetzungen für das Forstamt, das auch in zahlreichen waldpädagogischen Angeboten Wissen über das Ökosystem Wald und die Bedeutung von nachhaltiger Forstwirtschaft vermittelt.

Besucher und Mitarbeiter gelangen von Süden auf einen mit Staudenpflanzungen strukturierten Parkplatz aus Rasensteinen auf der Westseite des Gebäudes gegenüber dem Eingangsbereich. Über den Innenhof zwischen den beiden Gebäudeflügeln betritt man das zweigeschossige Entrée. Der Betriebshof auf der Rückseite ist über eine separate Zufahrt von Osten zu erreichen.

Das Gebäude ist als konstruktiver Holzbau über einem kleinen Untergeschoss aus Beton errichtet. Das Tragskelett und die hybriden Holz-Beton-Verbunddecken bestehen aus BauBuche. Dieser in Thüringen entwickelte Furnierwerkstoff aus heimischer Buche ermöglicht es aufgrund seiner Materialeigenschaften, sehr leistungsfähige Holzkonstruktionen zu realisieren. Die hinterlüftete Fassade ist als Holzrahmenbau mit Lärchenholzschalung oder Putzfassade ausgeführt. Die großzügigen Glasflächen des Innenhofs erleichtern die externe und interne Kommunikation und erlauben den Blick auf die Holztragkonstruktion sowie zahlreiche weitere Details aus heimischen Hölzern im Inneren. Als konstruktiver Holzbau mit einer Kombination aus bewährten und neuartigen Materialien zeigt der Entwurf, was Holz als nachwachsendes und wirtschaftliches Baumaterial leisten kann.

Durch seine klare funktionale Struktur mit dem in der Mitte liegenden Gruppenbüro der Revierförster befördert der Entwurf den Austausch unter den ständig hier anwesenden Mitarbeitern und den nur temporär im Büro arbeitenden Förstern. Holzwerkstoffe, weiße Putzflächen und die für das Projekt angefertigten Tischsysteme mit farbigen textilen Akustikelementen sorgen für eine heitere Arbeitsatmosphäre und unterstreichen die Integration von Konstruktion, Gebäudehülle, Innenausbau und Möblierung.

Exemplarisch dient das Forstamt Jena-Holzland auch als Konzept für ein Büro- /Verwaltungsgebäude für Kommunen oder Firmen, da durch die positive Ausstrahlung die Kommunikation und Transparenz schlanker Organisationen befördert wird.

Forstamt Jena-Holzland / Isometrie
Dibujo © cornelsen + seelinger architekten BDA
Forstamt Jena-Holzland / Sekretariat EG
Foto © Thomas Eicken Fotografie, Fischbach bei Dahn
Forstamt Jena-Holzland / Büro Revierförster
Foto © Thomas Eicken Fotografie, Fischbach bei Dahn
Forstamt Jena-Holzland / Flurbereich OG
Foto © Thomas Eicken Fotografie, Fischbach bei Dahn
Forstamt Jena-Holzland / Fassade
Foto © Thomas Eicken Fotografie, Fischbach bei Dahn
Forstamt Jena-Holzland / Galeriebereich OG
Foto © Thomas Eicken Fotografie, Fischbach bei Dahn
Forstamt Jena-Holzland / Büroraum
Foto © Thomas Eicken Fotografie, Fischbach bei Dahn
Forstamt Jena-Holzland / Lageplan 1:2000
Dibujo © cornelsen + seelinger architekten bda
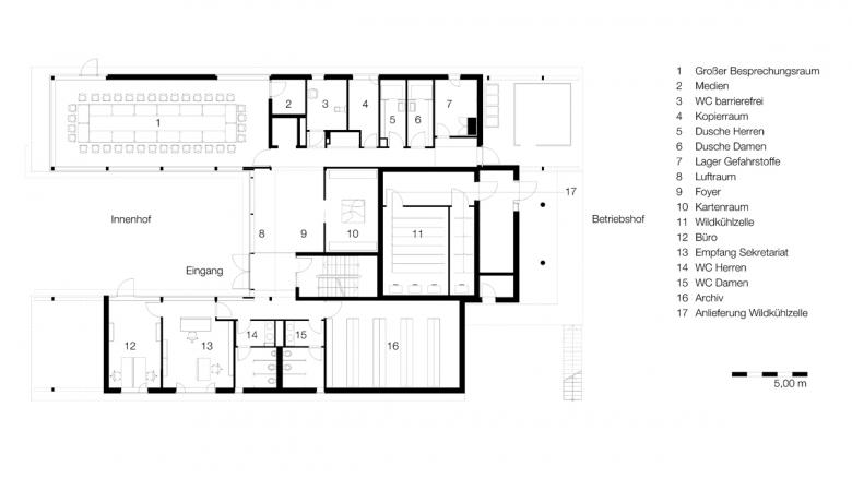
Forstamt Jena-Holzland / Grundriss EG 1:100
Dibujo © cornelsen + seelinger architekten bda
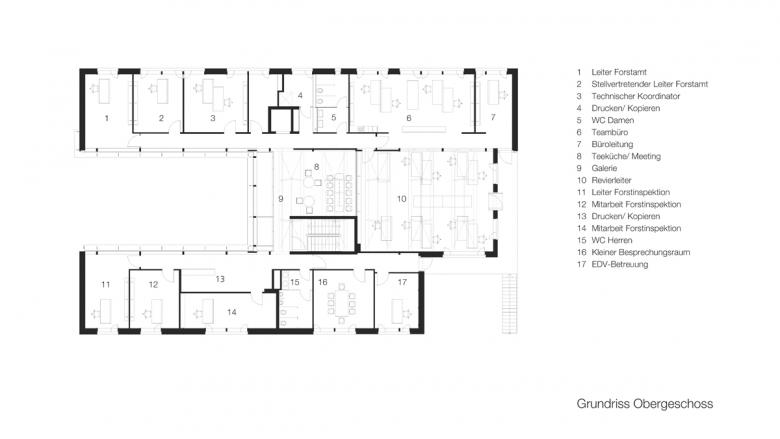
Forstamt Jena-Holzland / Grundriss OG 1:100
Dibujo © cornelsen + seelinger architekten bda
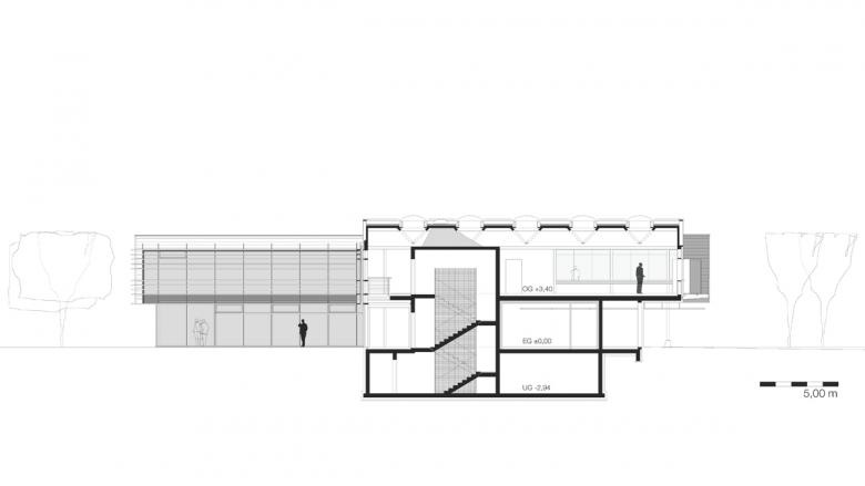
Forstamt Jena-Holzland / Längsschnitt 1:100
Dibujo © cornelsen + seelinger architekten bda
Forstamt Jena-Holzland / Querschnitt 1:100
Dibujo © cornelsen + seelinger architekten bda
Arquitectos
+Seelinger Architekten BDA
Año
2018
Estado del proyecto
Construido
Cliente
ThüringenForst
Equipo
Projektleitung in cornelsen+seelinger GbR: Dipl.-Ing. Martin Seelinger, Projektarchitektin: Dipl.-Ing. Iris Elsenheimer
Tragwerksplaner
merz kley partner ZT GmbH, A-Dornbirn
Energiekonzept, TGA-Planung
Solares Bauen GmbH, Freiburg im Breisgau
Bauausführung Holzbau
Grossman Bau GmbH & Co. KG, Rosenheim
Brandschutzkonzept
Dehne, Kruse Brandschutzingenieure GmbH & Co. KG, Gifhorn
Auszeichnungen
Deutscher Holzbaupreis 2019, Kategorie „Neubau“
 | Architekturpreis 2019 der Architektenkammer Thüringen (Anerkennung)

Proyectos relacionados 

  • Eissporthalle Davos
    WALTER BIELER AG
  • Moos
    playze
  • Reiters Reserve Premium Suiten
    BEHF Architects
  • Erweiterung und Instandsetzung Hallenbad Altstetten
    MIYO Visualisierung
  • Neubau von fünf Einfamilienhäusern
    Bäumlin+John AG

Magazine 

Otros proyectos de +Seelinger Architekten BDA 

Wohnpark Breitwiesenberg
Darmstadt, Alemania
Hausgruppe
Seeheim, Alemania
Wohnhaus K
Leipzig, Alemania
Haus des Holzes
NN
Furnierschichtholzwerk
Creuzburg, Alemania