Gartenwohnung im Pfarrhaus St. Peter
St. Peterhofstatt 2, Zürich, Switzerland
Die Kirche St. Peter ist ein nationales Baudenkmal und der erste protestantische Sakralbau in der Stadt Zürich. Sie ist eine der drei Altstadtkirchen, die die Silhouette von Zürich prägen.
Das dazugehörende Pfarrhaus besteht aus einem Kernbau des 13. Jahrhunderts mit Erweiterungen nach Osten und Süden. Von 1778 bis 1801 wirkte hier J. C. Lavater als Pfarrer.
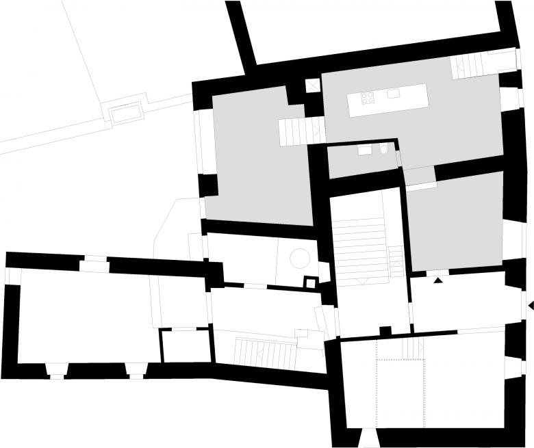
Im Sockelgeschoss des Pfarrhauses konnten seit geraumer Zeit mehrere Räume keiner bestimmten Nutzung zugewiesen werden. Die leeren Kalträume – die ehemalige Waschküche, der Klamottenkeller und das Gartenzimmer – waren zum Teil feucht und das historische Bruchsteinmauerwerk schadhaft.
Mit dem Einbau der 2.5-Zimmer-Gartenwohnung konnte wertvoller, bislang leer stehender Raum inmitten der Altstadt belebt und einer Wohnnutzung zugeführt werden.
Der Umbau erfolgte in enger Zusammenarbeit mit der Denkmalpflege. Zwei frei gelegte Wanddurchbrüche verbinden die Räume - der kammerartige Grundriss gewinnt an Grösse, Licht und Atem. Die Höhenunterschiede wurden mit Differenzstufen aufgenommen. Die neu eingebaute Nasszelle, die Küche und die neuen Oberflächen kontrastieren zu den historischen Elementen.
- Arquitectos
- architektick
- Año
- 2010
- Estado del proyecto
- Construido
- Cliente
- Kirchenpflege St. Peter, Zürich
Proyectos relacionados
Magazine
-
La Construcción de la semana
The Three-Body Problem: Trapped in a Wave Sandwich
Eduard Kögel, Scenic Architecture Office | 13.04.2026 -
-








