Hafenschule Offenbach
Hafengelände, Offenbach am Main, Alemania
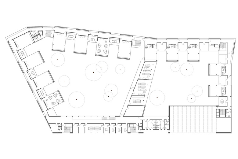
Vierzügige Grundschule und achtgruppige Kindertagesstätte mit zwei Sporthallen
Wie ein Schutzgürtel umschließen Grundschule, Kindergarten und Sporthalle einen großen Hof, der als grüne Mitte das Herz der beiden Einrichtungen bildet und als Spiel- und Lernbereich genutzt wird. Der 5-geschossige Fachklassentrakt und die übereinander angeordneten Sporthallen bilden eine kraftvolle Raumkante zum Nordring. Zum Innenhof entsteht aus den wechselnden Nutzungsbereichen eine feingliedrige Struktur mit einzelnen, sehr gut ablesbaren Klassenhäusern. Die Räume der Krippe sind ebenerdig zum Innenhof im Erdgeschoss, die Räume des Kindergartens im 1. Obergeschoss angeordnet.
- Arquitectos
- Waechter + Waechter Architekten
- Año
- 2017
- Estado del proyecto
- Construido
- Cliente
- Stadt Offenbach
- Wettbewerb
- 2011 - 1. Preis
- Auszeichnung
- 2018, BDA Hessen, Martin Elsaesser-Plakette
- Nominierung und Shortlist
- 2019, DAM Preis für Architektur in Deutschland
- Nominierung
- 2019, Architekturpreis Farbe Struktur Oberfläche
Proyectos relacionados
Magazine
-
-
La Construcción de la semana
The Three-Body Problem: Trapped in a Wave Sandwich
Eduard Kögel, Scenic Architecture Office | 13.04.2026 -




















