Haus in Richterwil
Richterswil, Switzerland
Haus mit verstecktem Garten
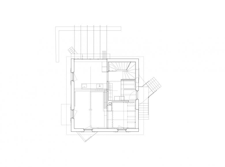
Ein Arbeiterhaus aus den 30er-Jahren in dicht besiedelter Nachbarschaft. Der generische Grundriss des Bestandes wird der Lage an der Topografischen Kante, zwischen kühlem, hangseitigem Garten und der Fernsicht über den Zürichsee nicht gerecht. In einem subtraktiven Entwurfsansatz wird die gleichförmige Kammerung der Geschosse dreimal neu aufgebrochen und überschrieben:
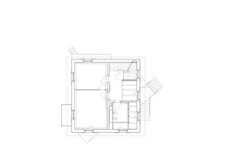
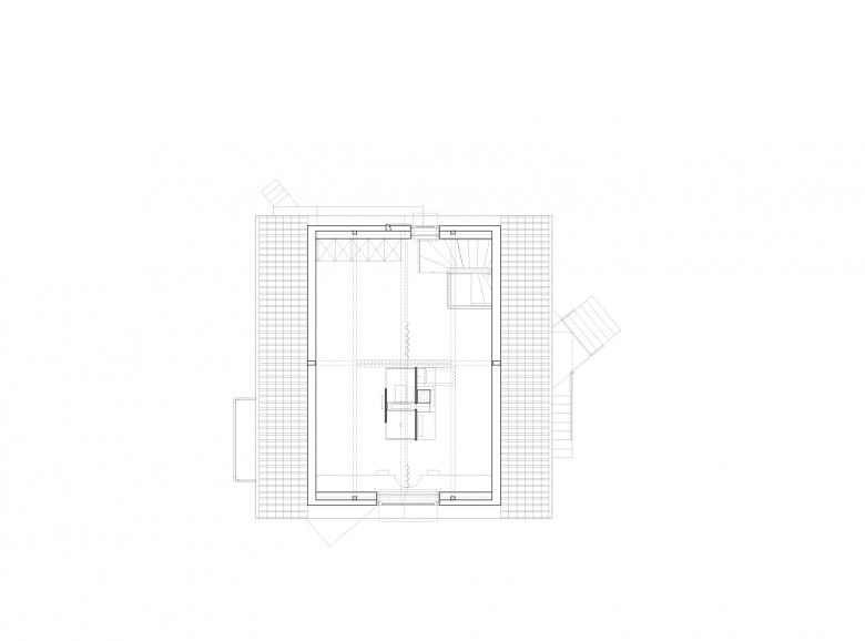
Im Erdgeschoss öffnen laterale Wanddurchbrüche neue Perspektiven und erlauben den Rundlauf um das dichte Zentrum des kreuzförmigen Grundrisses. Im ersten Obergeschoss werden die maroden Böden früherer Nassbereiche entfernt, um eine vertikale Verbindung und das Erleben des Hauses als Einheit zu ermöglichen. Im tiefen Dachgeschoss ohne Kniestock, wird der Grundriss komplett aufgelöst und als offener, zeltartiger Umraum mit mittigen Einbauten inszeniert.
Dieses Konzept erlaubt die Konzentration der aufwändigen Interventionen auf die Hausmitte und eine äusserst effektive Sanierung aller Geschosse. Die Lage und Dichte der technischen Installationen an der Schnittstelle aller Räume prägt den architektonischen Ausdruck ebenso, wie die konsequent direkte Neuinterpretation der Fassadenöffnungen. So befindet sich die grösste Öffnung des Hauses überraschenderweise auf der Hangseite und öffnet das Raumkontinuum zum versteckten Garten – es erweitert den Innenraum um ein Aussenzimmer und ergänzt den Bestand mit neuen Qualitäten.
- Arquitectos
- Stefan Wülser +
- Año
- 2022
- Estado del proyecto
- Construido
- Cliente
- Privat


































