Hauser & Wirth 18th Street
511 West 18th Street, New York, NY, USA
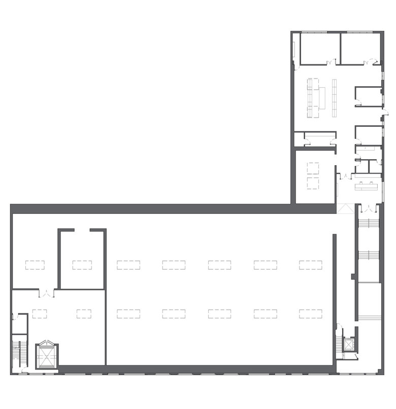
The Roxy, a former roller rink and nightclub was transformed into Hauser & Wirth’s second gallery in New York—a 24,700 sf column-free space dedicated to the display of large scale contemporary art. Located on the second level of a Chelsea garage, the gallery has a unique circulation sequence that draws visitors up a long, sweeping stairway before revealing the main exhibition space: a vast 10,000 sf gallery. Inside the space, the exisiting wood ceilings were restored; large steel trusses were refinished; skylights were uncovered and enlarged; and new museum-quality lighting and mechanical systems were added throughout. Three smaller galleries complement the main exhibition space, while administrative offices are located on the main level, as well as on a private mezzanine above. Several artists contributed to the project including Björn Roth, who designed the gallery’s Roth Bar as a tribute to his father Dieter Roth; and Martin Creed, who created a custom installation for the entrance stair hall.
- Arquitectos
- Selldorf Architects
- Año
- 2013
- Estado del proyecto
- Construido












